1. Portal
  2. Forum
    1. Forenübersicht
    2. FAQ - Fragen rund ums Forum
  3. Camper
    1. Bautagebücher
    2. Camper Galerie
    3. Wissensbasis
  4. Treffen
    1. Anstehende Treffen
    2. Impressionen vergangener Treffen
  5. Reisen
    1. Reiseziele
    2. Reiseberichte
    3. Urlaubsfotos
  • Anmelden
  • Registrieren
  • Suche
Dieses Thema
  • Alles
  • Dieses Thema
  • Dieses Forum
  • Artikel
  • Seiten
  • Forum
  • Termine
  • Galerie
  • POIs
  • Blog-Artikel
  • Erweiterte Suche
  1. womobox & Leerkabinen-Forum
  2. Forum
  3. Camping-Fahrzeuge
  4. Bautagebuch

Atego Plywoodkoffer mit Ladebordwand wird Wohnmobil

  • Varaderorist
  • 14. Januar 2016 um 15:16
  • Varaderorist
    womobox-Guru
    Beiträge
    1.294
    Karteneintrag
    ja
    Wohnort
    Kevelaer-Twisteden
    • 17. Januar 2016 um 17:03
    • #41

    Hallo Ihr Lieben,

    ist schon klasse, wie viele Leute sich hier Gedanken zu einem Projekt machen. Ich werde sicherlich die eine oder andere Anregung zu beherzigen wissen.
    Jetzt muss ich mich aber erst einmal um Anderes kümmern. Ich melde mich dann bei Gelegenheit wieder, vor allem, wenn wieder etwas passiert ist, kann aber etwas dauern.

    Bis denne!

    Gruß vom Niederrhein
    Michael

  • VWBusman
    womobox-Guru
    Beiträge
    4.928
    Karteneintrag
    ja
    Wohnort
    Nord-Schwarzwald
    • 17. Januar 2016 um 17:23
    • #42

    Hallo Syt,

    ich bin mit meiner Kabine auch im Winter unterwegs und beheize sie mit einer Luftheizung.
    Das die Luftheizung eine leicht Luft trocknende Eigenschaft mit sich bringt kommt der, im Winter, etwas höheren Luftfeuchtigkeit im Mobil sehr entgegen.
    Auch das nicht so träge Medium Luft gegenüber dem Wasser/Flüssigkeit gefällt mir.
    Aber, das ist wie so vieles im Leben Geschmacksache.

    Gruß Christopher

  • dreamteam
    womobox-Halbgott
    Beiträge
    819
    Karteneintrag
    ja
    Wohnort
    Slowenien
    • 17. Januar 2016 um 18:42
    • #43

    Wir haben eine Luftheizung verbaut (die wir seit drei Wintern nicht mehr brauchen). Mit dieser hatten wir nie trockene Handtücher, eine immer schimmelnde Ecke, immer mehr oder weniger feuchte Dachluken und Fenster und immer einen lästigen Luftzug von unterm Tisch. Klar, heitzt schnell(er) auf, aber dieser Vorteil ist m.E. nach zu vernachlässigen weil man im Winter sowieso so gut wie ständig heizen muss. Zum drin leben oder längere Perioden bewohnen ein no go. Die grosse Störanfälligkeit sei mal so dahin gestellt. So unsere Erfahrung.
    Auf jeden Fall aber ein gutes Feature nebst was anständigen.
    Das Non plus Ultra für intensive und verlässliche Nutzung, und überhaupt bei einem Fahrzeug dieser Grösse, heisst Holz- o. Dieselofen mit Wärmetauscher in den Heizkreislauf eingebunden und als Backup eine WW Heizung welche auch nachts durchlaufen kann. Alles zusammen noch mit dem Motorkühlkreislauf verbunden und Gemütlichkeit ist garantiert. So hat man drei Heizmöglichkeiten ins selbe System integriert. Allerdings wirklich ein etwas komplexeres System... ...aber wer hats den nicht gern gemütlich? Tja, und dafür muss man eben seinen Preis zahlen... ;)

    LG,
    Beni

    You weren't born just to pay taxes and die...
    One life, live it!

  • syt
    womobox-Halbgott
    Beiträge
    670
    Karteneintrag
    nein
    • 17. Januar 2016 um 19:21
    • #44

    Ein Holzöfchen wäre auch sehr schön,finde ich,aber da zu müsste ich die Längsitzbank und einen Dachstaukasten kürzen :oops: ,bei einem neubau schon toll,aber nur zusätzlich,um etwas vor dem Feuerchen zu sitzen :wink:

    Leben ,und leben lassen !

  • dreamteam
    womobox-Halbgott
    Beiträge
    819
    Karteneintrag
    ja
    Wohnort
    Slowenien
    • 17. Januar 2016 um 20:45
    • #45

    OT:
    Du willst sicher nicht wissen wie u. wo wir unseren Ofen reingedrängt haben... :mrgreen: ... im 570er. :wink: und jetzt haben wir ihn und geben ihn nicht mehr her. :mrgreen:8)
    Wenn ich richtig rausgeschnüffelt habe bist du mit einem 670er Clou unterwegs??? Das war vor der Entscheidung zum Neubau unser Favorit als Nachfolger des jetzigen 570er.
    Genau, entweder hätte ich die Längssitzbank etwas gekürzt, oder, je nach Clou Model, links von der Eingangstür wenn dort nicht der Kühli steht. ;)

    BTW hier gehts ja um nen Neubau... :roll:;)

    LG,
    Beni

    You weren't born just to pay taxes and die...
    One life, live it!

  • Picco
    Moderator
    Beiträge
    5.739
    Karteneintrag
    nein
    Wohnort
    Rorschacherberg / Schweiz
    Wohnkabine
    selbst gebaut
    • 18. Januar 2016 um 07:02
    • #46

    Hoi zämä

    Zitat von syt

    Auch die eingeblasene Luft ist trockner,so das ich meine,das das Wohnklima ,für mich persönlich besser ist.


    Sorry, diese Aussage ist nur bedingt richtig.
    Da Luftheizungen im Umluftbetrieb einzubauen sind wird ja die Raumluft angesaugt. Bei Aussenluftansaugung ist natürlich klar dass im Heizbetrieb trockene Luft ausgeblasen wird, das ist aber weder sinnvoll noch mit einer Wasserheizung ohne Luftaustausch vergleichbar.
    Da die Luft erwärmt wird fällt zwar ihre relative Luftfeuchtigkeit, wenn sie aber wieder abkühlt hat sie exact wieder dieselbe Luftfeuchte wie vorher, da die Wassermenge in der Luft sich durch das Aufheizen nicht verändert.
    Die Luft wird also mit einer Luftheizung nicht trockener als mit einer Heizung mit Wasser als Wärmeträgermedium.
    Ausser man baut eine Aussenluftbeimischung ein, dann natürlich schon! :wink:
    Und mit einer Aussenluftbeimengung sind auch die von Beni beschriebenen Probleme, eine brauchbare Luftverteilung vorausgestzt, behoben.

    Gruss

    Picco

    http://www.comoltech.ch Meine Reiseberichte

  • syt
    womobox-Halbgott
    Beiträge
    670
    Karteneintrag
    nein
    • 18. Januar 2016 um 08:58
    • #47

    Am besten,verschiedene Heizsysteme ausprobieren, und dann das,was einem am geeigneten erscheint ,zu benutzen.


    1.Wie oft nutze ich eine Heizung ?
    2.Welchen Energieträger brauche ich ?
    3.Muss ich schnell aufheizen ?
    4.Möchte ich mit Motorwärme heizen ,oder den Motor vor wärmen ?
    5.Wie viel kann,oder will ich ausgeben ?
    6.Wie viel darf sie wiegen ?
    7.?

    Da gibt es sicher noch einiges zu beachten ?

    Habe auch schon einige durch,von Benzinstandheizung beim bully,Truma im wohnwagen,und die Truma E bei Mobilen,
    Die Alde WW ist für uns bis jetzt,mit Abstand,das beste System,es wird recht gleichmässig warm,über Motorabwärme,220 v und Gas zu betreiben,läuft leise und fast unbemerkt durch,
    Aber es gibt ja noch mehr zu erfahren,und zu erleben.

    Gruss,der syt

    Leben ,und leben lassen !

  • Varaderorist
    womobox-Guru
    Beiträge
    1.294
    Karteneintrag
    ja
    Wohnort
    Kevelaer-Twisteden
    • 25. Januar 2016 um 09:39
    • #48

    Moin moin,
    ich melde mich mal wieder.

    Bezüglich Heizung schlägt das Pendel im Moment eher in Richtung Diesel/Luft-Heizung. Der Aufwand ist für uns zum einen einfach überschaubarer und wir können einiges an Gasflaschen-Kapazität sparen, wenn wir nur Gas zum Kochen einsetzen.
    Fenster und Klappen wollen wir jetzt von Outbound nehmen, auch wenn die Preise (vor allem für die Klappen) ganz schön happig sind. Da wir ja nicht zu weit entfernt wohnen (Niederrhein, holländische Grenze), werden wir mal dort vorbeischauen, vielleicht geht ja bei einem persönlichen Gespräch noch was.....
    Das Dach bekommt auf Anregung des Chefs von WCS noch eine neue Platte aus 6 mm HPL, dann ist das statische Problem der labilen GFK-Dachbahn auch vom Tisch.
    Dachfenster sollen von HEKI sein (2 x Midi, 1 x Mini), bezüglich Solar sind wir in der Planung zur Zeit bei 360-480 Wp, da müssen wir den tatsächlichen Bedarf aber erst gegenrechnen.
    Konkret werden gerade die Transportrahmen für die Motorräder gebaut. Erst wenn die im Fahrzeug genau positioniert werden können, geht es weiter.

    Ich habe mal die geplanten Aussenansichten in 2 Bildchen angehängt.


    Bis die Tage!
    Michael

    Bilder

    • Linke Seite.jpg
      • 84,6 kB
      • 1.118 × 746
    • Rechte Seite.jpg
      • 82,88 kB
      • 1.022 × 679

    Gruß vom Niederrhein
    Michael

  • VWBusman
    womobox-Guru
    Beiträge
    4.928
    Karteneintrag
    ja
    Wohnort
    Nord-Schwarzwald
    • 25. Januar 2016 um 09:57
    • #49

    Hallo Michael,

    ohne das ich jetzt genau im Kopf habe wo sich im Innenraum was befindet wären mir das zu wenig Fenster.

    Ich liebe es viel Licht ins Fahrzeug zu bekommen um auch bei trüberen Wetter nicht das Gefühl zu haben in einem Loch zu sitzen.

    Gruß Christopher

  • mrmomba
    womobox-Guru
    Beiträge
    4.408
    Karteneintrag
    nein
    • 25. Januar 2016 um 10:04
    • #50

    Geht wohl, denn das hintere 1/3 fällt ja als Garage weg.

    5596-9c1f21f7b8c7fa5e47e4297fb7f4dc44cd25032b.webp

    Es Grüßt: MrMombatou
    ----

    Mrmombas + seine Frau und ihr neuer, erster Camper VW T3
    Mrmombas + Seine Frau und ihre erste Quasileerkabine!
    Mrmombas + Seine Frau und ihre neues Übergangswohnzeug

  • Leerkabinen-Wolfgang
    Administrator
    Beiträge
    6.093
    Karteneintrag
    ja
    Wohnort
    Rheinhessen, Bodenheim
    Wohnkabine
    Sonstiges
    • 25. Januar 2016 um 10:19
    • #51

    Hi Michael,

    was Christopher (VWBusman) bezüglich der Fenster geschrieben hat, war auch mein erster Gedanke! Das wird bei Dir eine ziemlich dunkle Kiste. Und auch Dachhauben reißen nicht alles 'raus - der Ausblick fehlt einfach.

    Viele Grüße
    Leerkabinen-Wolfgang

    die nächsten Festivitäten in http://www.Bodenheim.de:

    erstes Juni-WE (05.-08.06.2026): Weinfest - Stellplatz nicht nutzbar

    vierter Sept.-Samstag (26.09.2026): Weinprobe in den Weinbergen

    ???: 26. Leerkabinen-Treffen


    Stellplatz nur teilweise nutzbar, keine V+E! Bei Fragen eMail/PN an mich

  • Varaderorist
    womobox-Guru
    Beiträge
    1.294
    Karteneintrag
    ja
    Wohnort
    Kevelaer-Twisteden
    • 25. Januar 2016 um 10:54
    • #52

    Danke für's Feedback.

    Wir haben jetzt im Bettbereich 2 Fenster und ein Midi Heki,
    Im Bad nur ein Mini Heki (da will ich auch ganz bewußt kein Fenster),
    Im Küchenbereich 1 Fenster und im Wohnbereich 2 Fenster, davon einmal in der Tür, dann dort noch ein Midi Heki.

    Wir halten uns nach bisheriger Erfahrung gewöhnlich nur im Innenraum auf, wenn es draussen zu kalt ist oder regnet, außerdem zum Schlafen und zum Kochen.
    Außerdem gibt es bei uns "Wintercamping" nur in Ausnahmefällen.

    Ich denke nicht, dass wir Lichtmangel haben werden, aber trotzdem Danke für den Input.

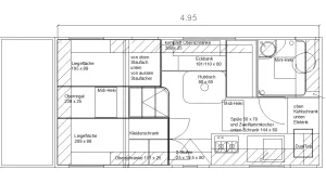
    Hier der aktualisierte Grundriss:

    Bilder

    • Grundriss aktuell.jpg
      • 164,7 kB
      • 1.201 × 614

    Gruß vom Niederrhein
    Michael

  • Abgemeldeter User
    Gast
    • 25. Januar 2016 um 11:32
    • #53

    Ich hab in meinem Wowa ein Heki drin.
    Folgende Erfahrungen hab ich gemacht:
    Bei Sonneneinstrahlung wirds unter dem Heki gnadenlos heiß, auch wenn Du die Jalousie davor ziehst....es strahlt einfach nur Hitze ins Auto, wenn es zu ist. Man kanns natürlich auch aufmachen, aber dann strahlt die Sonne rein und erwärmt die Möbel ......die Jalousie davor ziehen hilft natürlich, aber wenn nur etwas frischer Wind geht, dann fängts an zu rappeln und wird von nur kleinen Böen nach unten gedrückt, bis die Zieharmonikafalzung rausgeht.

    Das Mückengitter ist nicht sicher, auch da wird die Seitenkante schon bei geringem Wind rausgedrückt und die lieben Tierchen haben freien Zugang. Ich habs nur gekauft, weil es ein Lagerwagen war, den ich so, wie er war, übernehmen musste...bei freier Auswahl hätte ich drauf verzichtet.

    Querlüftung mit ausreichend vielen und großen Fenstern ist nach meinen Erkenntnissen vorzuziehen. Es gibt dafür eine Isolierhaube, die man drüberziehen kann, aber die ist mir während der Fahrt schonmal abgeflogen (soll auch nur im Stand aufgezogen werden) und das anbringen ist eine elende Fummelei...

    Nur habe ich das Glück, dass ich nur im Frühjahr und im Herbst unterwegs bin, da ist es nicht ganz so schlimm mit der Hitze, und ich achte drauf, so unter Bäumen zu stehen, die Schatten werfen.... Nur, im Mittelmeerraum unter Pinien ist auch nicht das Optimum....Harz und Zapfen als Stichwort.....

    In der Mittagshitze, die schon im April in Spanien ganz ordentlich ausfällt, ist die Temperatur am angenehmsten, wenn man Durchzug von rechts und links mit ganz hochgestellten Fenstern macht, auf die man ein altes Badehandtuch legt...das zwicke ich mit Wäscheklammern fest und das liefert Schatten. meine Scheiben sind 1,20 x 60 cm......

    Aber alle Leute sind scharf drauf.....hihi... ich versteh das nicht wirklich.....mein freundlicher wies darauf hin, dass Wohnwagen, die keins haben, schwerer verkäuflich sind....

  • Varaderorist
    womobox-Guru
    Beiträge
    1.294
    Karteneintrag
    ja
    Wohnort
    Kevelaer-Twisteden
    • 25. Januar 2016 um 12:33
    • #54
    Zitat von ThomasFF

    Ich hab in meinem Wowa ein Heki drin.
    Folgende Erfahrungen hab ich gemacht:
    Bei Sonneneinstrahlung wirds unter dem Heki gnadenlos heiß, auch wenn Du die Jalousie davor ziehst....es strahlt einfach nur Hitze ins Auto, wenn es zu ist. Man kanns natürlich auch aufmachen, aber dann strahlt die Sonne rein und erwärmt die Möbel ......die Jalousie davor ziehen hilft natürlich, aber wenn nur etwas frischer Wind geht, dann fängts an zu rappeln und wird von nur kleinen Böen nach unten gedrückt, bis die Zieharmonikafalzung rausgeht.

    Das Mückengitter ist nicht sicher, auch da wird die Seitenkante schon bei geringem Wind rausgedrückt und die lieben Tierchen haben freien Zugang. Ich habs nur gekauft, weil es ein Lagerwagen war, den ich so, wie er war, übernehmen musste...bei freier Auswahl hätte ich drauf verzichtet.

    .....und was siehst Du als Alternative?

    Gruß vom Niederrhein
    Michael

  • dreamteam
    womobox-Halbgott
    Beiträge
    819
    Karteneintrag
    ja
    Wohnort
    Slowenien
    • 25. Januar 2016 um 12:45
    • #55

    Bei uns wirds keine Dachfenster mehr geben. Es werden Dachklappen, isoliert und robust.
    Am liebsten würde ich garnichts auf dem Dach haben, aber die Lüftung möchte ich nicht missen.

    Allerdings bietet auch Outbound Dachfenster ab ca. 700€ an. Ob es einen dazu passenden Mückenschutz gibt weiss ich nicht. Auf jeden Fall aber unvergleichbar besser als die Camping Schrott Artikel.

    LG,
    Beni

    You weren't born just to pay taxes and die...
    One life, live it!

  • Varaderorist
    womobox-Guru
    Beiträge
    1.294
    Karteneintrag
    ja
    Wohnort
    Kevelaer-Twisteden
    • 25. Januar 2016 um 13:24
    • #56
    Zitat von dreamteam

    Bei uns wirds keine Dachfenster mehr geben. Es werden Dachklappen, isoliert und robust.
    Am liebsten würde ich garnichts auf dem Dach haben, aber die Lüftung möchte ich nicht missen.

    Allerdings bietet auch Outbound Dachfenster ab ca. 700€ an. Ob es einen dazu passenden Mückenschutz gibt weiss ich nicht. Auf jeden Fall aber unvergleichbar besser als die Camping Schrott Artikel.

    Die Outbounds wären auch meine erste Wahl gewesen, aber schau mal, wenn die geöffnet sind........da brauchst Du immer 'ne Leiter, um die wieder zu schließen, da der Hebel, wie bei den Fenstern auch, unten am Fenster sitzt und naturgemäß bei Vollöffnung in "Wolkenhöhe" sitzt.

    Gibt es weitere Alternativen (außer KCT, die sind mir wirklich zu teuer)??

    Gruß vom Niederrhein
    Michael

  • Anton
    womobox-Guru
    Beiträge
    2.789
    Karteneintrag
    nein
    Wohnort
    Am Fuß der Homert
    • 25. Januar 2016 um 15:12
    • #57
    Zitat von dreamteam

    Bei uns wirds keine Dachfenster mehr geben. Es werden Dachklappen, isoliert und robust.
    Am liebsten würde ich garnichts auf dem Dach haben, aber die Lüftung möchte ich nicht missen.


    Hallo


    wir haben auch Dachklappen statt Dachhauben/Dachfenster. Und die Lüftungsmöglichkeit eines Loches im Dach sollte man nicht unterschätzen. Da geht wie ein Kamin. Die Hitze nur durch Querlüften raus zu kriegen ist nich so dolle.

    Für isolierte Dachklappen haben wir uns auch entschieden, weil diese Fertigplastikteile einfach muff sind. :?


    VG

    Anton

    Wir brauchen dringend ein paar Verrückte - seht euch doch mal um, wo uns die Vernüftigen hingebracht haben!

  • Abgemeldeter User
    Gast
    • 25. Januar 2016 um 16:25
    • #58

    ...Bad und eine im Wohnraum reichen aus (vielleicht auch ne zweite über dem hohen Bettauf der Garage)...denen kann man auch ein solides Mückengitter verpassen.

    Man macht diese in der Nacht auf, tagsüber, wenn man im Auto sitzen sollte, ist die Querlüftung mit weit offenen Fenstern und mit dem Badtuchtrick optimal...

    In meinem LKW Womo, hatte ich auch eine Öffnung senkrecht in der Heckwand, außen mit einem Kiemenblech drauf und innen ein solides Mückengitter und eine solide Platte aus Holz mit Dichtungsgummi, oben am Scharnier mit unten einem Knebelverschluss.....damit bei der Fahrt der starke Sog nichts reinzieht.Die konnte man nachts vor allem bei Regen gut nutzen. Vorne wurden dann die Fenster auf ein wenig Spalt gestellt, da hatte man Luft genug....

  • wiru
    womobox-Guru
    Beiträge
    1.131
    Karteneintrag
    ja
    Wohnort
    Treuchtlingen
    • 25. Januar 2016 um 17:12
    • #59

    Muss Thomas recht geben mit den Dachfenstern...hatte in der alten Pickup Kabine auch ein großes, aber nach ein paar Jahren wieder mit styropor und Alufolie zu gemacht. Im neuen nur ein kleines Dachfenster im (abgetrennten) Bad. Wenn du unterwegs bist, kannst du ein Wohnraum-Dachfenster nicht offen lassen, weil es dann garantiert regnet...bei Seitenfenstern kein Problem (außer Diebstahl, aber da hab ich z.b. auf CPs gar keine Angst und in der pampa auch nicht (Fenster sind hoch genug angebracht, dass man nicht rein gucken/klettern kann...)

    Gruß, Willi

    unser Womo: Sprinter 4x4 mit Ormocar-Kabine
    Ausbau-und Reiseblog: http://www.caribou.wirblogger.de

  • Varaderorist
    womobox-Guru
    Beiträge
    1.294
    Karteneintrag
    ja
    Wohnort
    Kevelaer-Twisteden
    • 25. Januar 2016 um 19:34
    • #60

    N'abend,

    ich habe den Nachmittag genutzt und bin bei Outbound vorbei gefahren. Sind nur etwa 50 km von hier.
    Der Eindruck ist überzeugend. Es ist eine reine Manufaktur ohne große Montagehallen. Es ist ein fast reiner Familienbetrieb, der weitgehend nur auf Bestellung produziert.

    Der Materialeindruck ist wirklich gut. Alles ist durchdacht und stabil. Selbst der Rahmen der Innenrollos fasst sich nicht plastikmäßig an, könnte sogar beschichtetes Aluminium sein. Habe vergessen zu fragen.
    Die Riegel und Schlösser sind aus dem vollen gefräst und absolut robust.

    Ob das im Endeffekt den Preis rechtfertigt, muß jeder selbst entscheiden. Ich bin auf jeden Fall überzeugt: Auch die beiden größeren Dachfenster werden Outbound-Fenster werden.
    Das genannte Problem mit der Riegel-Erreichbarkeit ist bei Outbound bekannt, aber man meint, dass da der Einbauer schon jeweils eine für ihn passende kreative Lösung finden wird.
    Ich werde das wohl über am Riegel befestigte kurze Riemen regeln.
    Das Waschraum-Dachfenster muss ich leider von einem anderen Anbieter nehmen, da die benötigte Größe (max. 40x40 cm) bei Outbound nicht hergestellt wird.

    In der Halle stand der 4x4-Truck, der als Show-Truck und Vater's Reisemobil dient. Er ist ein fast -Zwilling des LKWs von der Webseite: http://www.outbound.eu/de/
    Auch hier kann die hohe Qualität und Detailgenauigkeit überzeugen. ich hätte aber wahrscheinlich einige Fenster weniger eingebaut....... :lol:

    Gruß
    Michael

    Gruß vom Niederrhein
    Michael

Jetzt mitmachen!

Mit einem Benutzerkonto kannst du das womobox Forum noch besser nutzen.
Als registriertes Mitglied kannst du:
- Themen abonnieren und auf dem Laufenden bleiben
- Dich mit anderen Mitgliedern direkt austauschen
- Eigene Beiträge und Themen erstellen

Benutzerkonto erstellen Anmelden

Spenden-Ziel

Jährlich (2026)

63,5 %

63,5% (317,50 von 500 EUR)

Jetzt spenden

Benutzer online in diesem Thema

  • 7 Besucher
  1. Nutzungsbedingungen
  2. Datenschutzerklärung
  3. Impressum
Gefällt es dir hier? Dann bitte jetzt :)
Community-Software: WoltLab Suite™