1. Portal
  2. Forum
    1. Forenübersicht
    2. FAQ - Fragen rund ums Forum
  3. Camper
    1. Bautagebücher
    2. Camper Galerie
    3. Wissensbasis
  4. Treffen
    1. Anstehende Treffen
    2. Impressionen vergangener Treffen
  5. Reisen
    1. Reiseziele
    2. Reiseberichte
    3. Urlaubsfotos
  • Anmelden
  • Registrieren
  • Suche
Dieses Thema
  • Alles
  • Dieses Thema
  • Dieses Forum
  • Artikel
  • Seiten
  • Forum
  • Termine
  • Galerie
  • POIs
  • Blog-Artikel
  • Erweiterte Suche
  1. womobox & Leerkabinen-Forum
  2. Forum
  3. Ausbau: Installation und Technik
  4. Wohnen und Schlafen

Klappbett vs. Hubbett

  • DirkausL
  • 2. April 2024 um 20:25
  • DirkausL
    Frisch-dabei
    Beiträge
    8
    • 2. April 2024 um 20:25
    • #1

    Hallo zusammen,

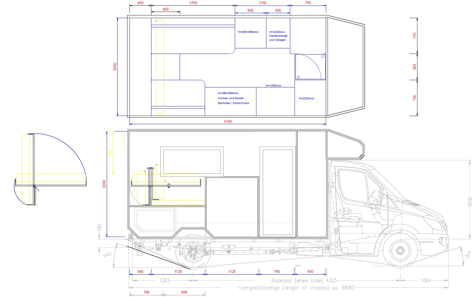
    ich möchte mich auch nochmal gern in die Diskussion Hubbett vs. Festbett einbringen. Ich schliesse mich Burki68 voll und ganz an, Festbett mit kleiner unbequemer Dinette möchten wir auch nicht, insbesondere finde ich das Festbett einfach viel zu viel Platz dauerhaft veranschlagt. Hubbett hat aus meiner Sicht den Nachteil - keine Hängeschränke oder Regale im oberen Bereich, des Weiteren ist ein Dachfenster tagsüber versperrt.

    Ich plane zurzeit ein Klappbett, welches teils hinter die Rücklehne einer Hecksitzgruppe gegen die Kabinenrückwand geklappt wird, komplett mit Matratze und Bettzeug (... ich weiss, muss sichergestellt sein, dass dieses nicht runterfällt ;)) Ein Heckfenster ist bei dieser Version zwar ziemlich unnütz, aber aus meiner Sicht erträglich. Habe hier mal meinen Entwurf und Plan eingesetzt.

    Zurzeit bin ich bei einem Platzbedarf von ca. 45cm für das eingeklappte Bett, macht ein Platzgewinn von ca. 35cm gegenüber 2 übereinander geschobenen Betthälften, was ich schon mal ziemlich nützlich finde.



    Viele Grüße aus Lünen

    Dirk

    Viele Grüsse aus Lünen

    Dirk

    James Cook, 312D, 1999, Aut., Diff.-Sperre AT-Reifen, LiFePo m. WR, LF

  • Burki68
    Junior
    Beiträge
    40
    • 2. April 2024 um 23:38
    • #2

    Wegen mir ist es ok hier in diesem thread. Immerhin wurde das Hubbett ja kontrovers diskutiert. Mit dem Klappbett nimmst du dir aber

    • Heckfenster
    • Locker 30-40cm Länge der Wohnfläche
    • Ebenfalls Hängeschränke, zumindest hinten

    Wenn das Bett 140cm breit ist und die Rückenlehne auf ca 80 cm ist muss du 220cm Innenraum-Höhe haben. Bei dem Radius, den du zum klappen brauchst wird es auch mit den seitlichen Hangeschränken eng...

  • WMFStefan
    womobox-Spezialist
    Beiträge
    222
    • 3. April 2024 um 17:13
    • #3

    Hallo,

    ich finde bei unserem Daily das Hubbett zum "Raumausnutzen" ideal.

    Grüße

    Stefan

  • Tobi
    womobox-Halbgott
    Beiträge
    614
    Wohnort
    Eschborn
    Wohnkabine
    Ormocar
    • 3. April 2024 um 18:27
    • #4

    Hallo Dirk,

    ich habe die ursprgl. Diskussion nicht verfolgt - Deinen Entwurf find ich aber recht interessant.

    Meine Gedanken dazu wären:

    • Heckfenster fängt mir eh zu viel Schmutz - zwei seitliche Fenster und je nach Geschmack ein großes Heki oben wären mir genug,
    • Wenn Du das Doppelbett in einem Stück schwenken willst, würde versuchen, die Lehnen der Sitzgruppe klappbar oder wegnehmbar zu bauen, dann kommst Du mit dem Bett und dem Drehpunkt Deines Mechanismus tiefer.
    • Hängeschränke bleiben ein Problem, können nicht im Drehbereich des Bettes hängen.
    • Der Drehpunkt 45cm vor der Rückwand verschenkt tatsächlich Platz, so dick ist Dein Bett mit Unterbau und Bettzeug eher nicht.

    Wenn Du den Raum im Heck schon drangeben möchtest, dann wäre es noch eine Idee, dem Doppelbett längs ein Scharnier zu geben, dann brauchst Du zwar tatsächlich die 45 cm Stauraum für das weggeklappte Bett,
    aber Du könntest darüber noch Oberschränke haben. Ich hab mal eine schnelle Skizze gemacht, sonst ist vermutlich nicht klar, was ich meine.


    2016er Sprinter 319CDI mit Ormocar-Koffer, gasfreier Ausbau.
    Mehr zu unserem Fahrzeug gibt es in der Campergalerie - unsere Reisen nach Mittel- und Nordeuropa findet ihr hier.

  • Online
    holger4x4
    womobox-Guru
    Beiträge
    7.433
    Wohnort
    Bergisches Land
    • 3. April 2024 um 18:53
    • #5

    Alternative wäre noch die Anordnung wie bei den Woelcke autark Ausbauten. Daran haben wir uns orientiert.

    Hinten ein 120cm tiefe Matratze fest mit Unterfederung und davor 2x80cm Sitzfläche. Die wird zum schlafen umgebaut und da liegen die Beine drauf.

    Vorteile: Bett 2x2m, Fenster auf 3 Seiten, Stauraum unter den 120cm hinten, Sitz und Lümmelmöglichkeit durch die Bettfläche auf Höhe der Sitzfläche, Ablage auf der Bettfläche möglich, Tisch kann über das Bett gewchwenkt werden und man hat mehr Bewegunsfreiheit an der Sitzfläche. Hängeschränke sind uneingeschränkt möglich.

    Nachteil: Man hat das Bettzeug sichtbar hinten liegen, oder man räumt es in einen Staukasten.

    Uns gefällts!

    Gruß, Holger

  • DirkausL
    Frisch-dabei
    Beiträge
    8
    • 3. April 2024 um 22:07
    • #6

    Halso zusammen,

    Vielen Dank für Eure Meinungen und Ratschläge, wie so immer wird es ein Kompromiss werden.

    Burki68 ja, der Wegfall des Heckfensters ist auch aus meiner Sicht das Schlimmste, das hätte ich gern, insbesondere, da ich zurzeit noch im James Cook vorn im Cockpit sitze und ein wunderbaren Rundumblick habe, den ich aber in einer Kabine niemals erhalten werde.

    WMFStefan der Raumnutzen mit Hubbett ist sicherlich ideal, das Raumgefühl bei einer „flacheren“ Kabine aber m.E. gewöhnungsbefürftig. Wie hoch ist Eure Kabine? Gibt es einen Doppelboden? Wir möchten nicht zu hoch werden, da wir häufig in einer der letzten Ecken übernachten.

    Tobi der Abstand von 45cm lässt sich sicherlich noch etwas verringern, sollte allerdings zur Bettbelüftung tagsüber nicht zu eng werden. Super Zeichnung und eine gute Idee, werde ich mal drüber nachdenken. Ich habe auch schon über einen Beschlag wie bei einer Sitzbank nachgedacht, so dass das Bett beim Umklappen nach vorn geschoben wird, um den Abstand zur Rückwand zu verringern.

    holger4x4 der tägliche Bettumbau ist der Punkt, den wir scheuen, das gebe ich ganz klar zu. Daher kam die Idee, alles in Einem ohne großen Aufwand wegzuklappen.


    Das schöne an Foren sind die tollen Ideen und zugehörigen Diskussionen.

    Viele Grüße aus Lünen

    Dirk

    Viele Grüsse aus Lünen

    Dirk

    James Cook, 312D, 1999, Aut., Diff.-Sperre AT-Reifen, LiFePo m. WR, LF

  • Online
    holger4x4
    womobox-Guru
    Beiträge
    7.433
    Wohnort
    Bergisches Land
    • 3. April 2024 um 22:32
    • #7

    Irgendeinen Kompromiss muss man machen bei 3,6m Kabinenlänge. Der Raum zum sitzen und schlafen war uns wichtig, ebenso der rundum Ausblick. Die 2min Umbau stören wirklich nicht, wenn man das Bettzeug hinten liegen hat. Wir haben da einen Toppen von 180x200cm der zusammengefaltet hinten liegt. Der ist ruckzuck über die Polster ausgefaltet und das Bett ist fertig. Ich glaube nicht dass eine Klappkonstruktion weniger Arbeit macht.

    Beim Hubbett verliert man an Höhe, also muss die Kabine höher werden, oder man verliert das Podest und Stauraum, und die Hängeschränke.

    Gruß, Holger

  • Kreiseltaucher
    womobox-Halbgott
    Beiträge
    771
    Wohnkabine
    Ormocar
    • 3. April 2024 um 23:03
    • #8

    Wir haben eine echte U-Sitzgruppe auf einem Podest geplant. Die Querbank hinten wird allerdings ca. 80cm tief damit der Heckstauraum darunter mehr Breite hat. die Langsbänke werden, inkl. der 80cm, 2m lang mit durchgehender Matratze weil wir nicht auf einer Fuge liegen möchten. Die Polsterung wird so ausgelegt das sie oben härter als unten ist, somit härterer Sitzkomfort und angenehm weicheres Schlafen. Unten wird umlaufend Klettband an den Bezug der Matratze genäht. Daran wird das Bettlaken oder evtl. ein Topper befestigt. Zum Schlafen werden die Sitzpolster einfach umgedreht und zur Matratze. Das Bettzeug wird in einer gut belüfteten Schublade in der Sitzbank verstaut. Durch das Klettband kann das Laken nach Bedarf schnell und einfach gewechselt werden

    Der Umbau der U-Sitzgruppe zum Bett ist somit eine Sache von wenigen Handgriffen und Ruckzuck erledigt. Und auf der 80cm tiefen Quersitzbank kann man auch mal ohne Umbauten ein Mittagsschläfchen machen

    Grüsse aus dem Unterallgäu

    Peter

  • Online
    holger4x4
    womobox-Guru
    Beiträge
    7.433
    Wohnort
    Bergisches Land
    • 4. April 2024 um 08:57
    • #9
    Zitat von Kreiseltaucher

    .. die Langsbänke werden, inkl. der 80cm, 2m lang mit durchgehender Matratze weil wir nicht auf einer Fuge liegen möchten.

    Wir schlafen längs. Deshalb haben wir hinten 120cm fest liegende Matratze mit Unterfederung. Da liegt man mit dem Hintern noch voll drauf, nur die Beine liegen dann auf den Sitzpolstern.

    Gruß, Holger

  • Kreiseltaucher
    womobox-Halbgott
    Beiträge
    771
    Wohnkabine
    Ormocar
    • 4. April 2024 um 09:38
    • #10
    Zitat von holger4x4

    Wir schlafen längs. Deshalb haben wir hinten 120cm fest liegende Matratze mit Unterfederung. Da liegt man mit dem Hintern noch voll drauf, nur die Beine liegen dann auf den Sitzpolstern.

    War auch meine Anfangsidee. Bettzeug auch tagsüber darauf liegen lassen. Fand meine Frau allerdings zu "unaufgeräumt" und wenn man mal Besuch bekommt können auf den verbleibenden 80cm nur zwei Personen sitzen. Deswegen werden es bei uns 80cm Quer und Bettzeug im Staukasten/Schublade.

    Die spezielle Kaltschaummatratze (Oben fest / Unten weich) lasse ich ich im Nachbarort anfertigen. Die haben mir schon einiges an Polstern für mein Boot gemacht. Immer TOP Qualität

    Grüsse aus dem Unterallgäu

    Peter

  • DirkausL
    Frisch-dabei
    Beiträge
    8
    • 5. April 2024 um 08:36
    • #11

    ... wir finden ausserdem, dass das Bettzeug auch durchaus belüftet werden sollte, daher scheidet m.E. das Verstauen in einer Kiste aus. Es soll bei uns relativ lose über einer Stange hinter dem weggeklappten Bett hängen, dann will ich versuchen die abwärme von Kühlschrank, Batterien und Heizung über den Gepäckraum nach hinten zu führen und hoffe dabei noch auf einen Kamineffekt um für langsamen aber stetigen Luftwechsel zu sorgen - so zumindest der Plan - werde noch ein bisschen weitertüfteln.

    Viele Grüsse aus Lünen

    Dirk

    James Cook, 312D, 1999, Aut., Diff.-Sperre AT-Reifen, LiFePo m. WR, LF

  • Kreiseltaucher
    womobox-Halbgott
    Beiträge
    771
    Wohnkabine
    Ormocar
    • 5. April 2024 um 11:39
    • #12

    Täglich Bettzeug lüften halte ich für überbewertet .. Ups.

    Wenn dann lüften wir draußen an einer gespannten Leine

    Grüsse aus dem Unterallgäu

    Peter

  • Tobi
    womobox-Halbgott
    Beiträge
    614
    Wohnort
    Eschborn
    Wohnkabine
    Ormocar
    • 5. April 2024 um 11:51
    • #13
    Zitat von Kreiseltaucher

    Täglich Bettzeug lüften halte ich für überbewertet .. Ups.

    Wenn dann lüften wir draußen an einer gespannten Leine

    Na ja, man muss es nicht übertreiben, aber "luftdicht" einpacken über Tag ist sicher keine tolle Idee.

    2016er Sprinter 319CDI mit Ormocar-Koffer, gasfreier Ausbau.
    Mehr zu unserem Fahrzeug gibt es in der Campergalerie - unsere Reisen nach Mittel- und Nordeuropa findet ihr hier.

  • Kreiseltaucher
    womobox-Halbgott
    Beiträge
    771
    Wohnkabine
    Ormocar
    • 5. April 2024 um 13:15
    • #14

    Die Schublade bekommt am Boden und drei Seiten Lochblech anstatt Holz

    Grüsse aus dem Unterallgäu

    Peter

  • DirkausL
    Frisch-dabei
    Beiträge
    8
    • 5. April 2024 um 16:17
    • #15

    Hallo,

    lüften mag vielleicht übertrieben klingen, m.E. aber besser als das Bettzeug in einen Staukasten zu pressen ...

    Tobi Ich habe aber mal Deine Idee des zusätzlichen Scharniers aufgegriffen, ergibt zwar ein ganz ordentliches Paket, allerdings auch ein besseres Raumgefühl, Platz für Oberschränke und sogar ggf. ein Heckfenster ... mmmmh wird schon ein spannendes Thema

    Viele Grüsse aus Lünen

    Dirk

    James Cook, 312D, 1999, Aut., Diff.-Sperre AT-Reifen, LiFePo m. WR, LF

  • Online
    holger4x4
    womobox-Guru
    Beiträge
    7.433
    Wohnort
    Bergisches Land
    • 5. April 2024 um 16:24
    • #16

    Da muss man aber aufpassen, dass man beim Bett aufklappen nicht das Bettzeug unten im Schwenkbereich einklemmt.

    Gruß, Holger

  • DirkausL
    Frisch-dabei
    Beiträge
    8
    • 6. April 2024 um 12:11
    • #17

    Ja, da muss ich Dir recht geben … und es wird dann doch noch ein ziemlicher Klotz im Heck, da kommt wieder das Übereinanderschieben der 2 Betthälften ins Spiel

    Viele Grüsse aus Lünen

    Dirk

    James Cook, 312D, 1999, Aut., Diff.-Sperre AT-Reifen, LiFePo m. WR, LF

  • nunmachmal
    womobox-Guru
    Beiträge
    4.640
    Wohnort
    71634 Ludwigsburg
    Wohnkabine
    selbst gebaut
    • 6. April 2024 um 12:49
    • #18

    Um den Preis kannst du gleich auf das Niveau von den Sitzpolstern gehen und nur den Tisch absenken.


    Gruß Nunmachmal, 🇲🇪 42.428023,18.822624

    Ich habe viel aus meinen Fehlern gelernt, ich glaube ich mache noch einen.

  • mrmomba
    womobox-Guru
    Beiträge
    4.392
    • 7. April 2024 um 09:37
    • #19

    Eine ganz andere Idee wäre, hinter dem hochgeklappten Bett ein Semi-Offenes Regal für Schlafsachen etc. Hinzubauen. Schlafnanzug Unterwäsche Zahnbürsten wechselhandtücher braucht man i.d.R. nicht zu jeder Zeit am Tag zugänglich. Somit gibt es immernoch hinterlüftungsmöglichkeiten und Stauraum.

    Was ich aber aus "Erfahrung" weiß: Ich hab KEIN Bock jeden Morgen das Bett umzubauen... Und meine Frau auch nicht. Sowohl im T3 haben wir es nur für die Fahrt umgebaut und in der Eriba ist daraus jetzt ein Festbett geworden....

    5596-9c1f21f7b8c7fa5e47e4297fb7f4dc44cd25032b.webp

    Es Grüßt: MrMombatou
    ----

    Mrmombas + seine Frau und ihr neuer, erster Camper VW T3
    Mrmombas + Seine Frau und ihre erste Quasileerkabine!
    Mrmombas + Seine Frau und ihre neues Übergangswohnzeug

  • nunmachmal
    womobox-Guru
    Beiträge
    4.640
    Wohnort
    71634 Ludwigsburg
    Wohnkabine
    selbst gebaut
    • 7. April 2024 um 13:12
    • #20
    Zitat von mrmomba

    .....

    Was ich aber aus "Erfahrung" weiß: Ich hab KEIN Bock jeden Morgen das Bett umzubauen... Und meine Frau auch nicht. Sowohl im T3 haben wir es nur für die Fahrt umgebaut und in der Eriba ist daraus jetzt ein Festbett geworden....

    Aber man hat doch sonst nichts zu tun.😳

    So viel Arbeit ist das doch nicht. Dauert keine Minute!🤔


    Gruß Nunmachmal, 🇭🇷 42.920073,17.527272

    Ich habe viel aus meinen Fehlern gelernt, ich glaube ich mache noch einen.

Jetzt mitmachen!

Mit einem Benutzerkonto kannst du das womobox Forum noch besser nutzen.
Als registriertes Mitglied kannst du:
- Themen abonnieren und auf dem Laufenden bleiben
- Dich mit anderen Mitgliedern direkt austauschen
- Eigene Beiträge und Themen erstellen

Benutzerkonto erstellen Anmelden

Spenden-Ziel

Jährlich (2026)

31,5 %

31,5% (157,50 von 500 EUR)

Jetzt spenden
  1. Nutzungsbedingungen
  2. Datenschutzerklärung
  3. Impressum
Gefällt es dir hier? Dann bitte jetzt :)
Community-Software: WoltLab Suite™