1. Portal
  2. Forum
    1. Forenübersicht
    2. FAQ - Fragen rund ums Forum
  3. Camper
    1. Bautagebücher
    2. Camper Galerie
    3. Wissensbasis
  4. Treffen
    1. Anstehende Treffen
    2. Impressionen vergangener Treffen
  5. Reisen
    1. Reiseziele
    2. Reiseberichte
    3. Urlaubsfotos
  • Anmelden
  • Registrieren
  • Suche
Dieses Thema
  • Alles
  • Dieses Thema
  • Dieses Forum
  • Artikel
  • Seiten
  • Forum
  • Termine
  • Galerie
  • POIs
  • Blog-Artikel
  • Erweiterte Suche
  1. womobox & Leerkabinen-Forum
  2. Forum
  3. Basisfahrzeug und Aufbau
  4. Leerkabine: Absetzkabinen und Festaufbauten

Ausdehnung Körapur 666 - Risse oder nicht?

  • beginner
  • 14. Januar 2023 um 23:05
  • beginner
    Junior
    Beiträge
    28
    Karteneintrag
    nein
    • 14. Januar 2023 um 23:05
    • #1

    Hallo, ich hab den ersten Teil meiner GFK Kabine geklebt und überlege jetzt welchen Kleber ich nehme um die Alu Profile an die Aussenwand zu kleben. Körapur 666 war/ist mein Favorit aber ich habe gelesen, dass das Zeug einfach steinhart wird und man evtl. Probleme mit der Ausdehnung des Alus in der Sonne kriegt? Alu und GFK haben ja sehr ähnliche Ausdehnungskoefffizienten und bei 50° Unterschied wären das ca. 4mm Ausdehung auf 4,20m.
    Ich plane zwar zwei Dehnungsfugen...nur würden die ja nichts bringen wenn der Kleber das Material zu fest hält.

    Wie ist das? Paneltec und viele andere scheinen alle mit Körapur 666 zu verkleben. Sehe ich da Probleme die es in der Praxis nicht gibt?
    Dankeschön.

  • nunmachmal
    womobox-Guru
    Beiträge
    4.693
    Karteneintrag
    ja
    Wohnort
    71634 Ludwigsburg
    Wohnkabine
    selbst gebaut
    • 14. Januar 2023 um 23:24
    • #2

    Aufpassen! Alu und GFK reagieren unterschiedlich auf Sonneneinstrahlung.

    Ich habe eine Alu-Schublade am Dach. Ich kann barfuß auf dem "kalten" Dach gehen, aber die Schublade ist sehr heiß! So heiß da du nicht mit dem Fuß dran kommen möchtest.

    Die zwei Materialien heizen sich bei Sonneneinstrahlung unterschiedlich auf.

    Gruß Nunmachmal

    Ich habe viel aus meinen Fehlern gelernt, ich glaube ich mache noch einen.

  • Urs
    womobox-Guru
    Beiträge
    1.795
    Karteneintrag
    nein
    Wohnort
    Egliswil (AG)
    • 15. Januar 2023 um 10:10
    • #3

    Hallo,

    Ich hab meine Klappen mit Körapur 666 geklebt. Aber die sind aus GFK Profile, nicht Alu. Dass es Steinhart wird würde ich nich sagen, aber es wird schon recht hart. Bei einer möglichen unterschiedlichen Ausdehnung von 4mm und mehr würde ich einen flexibleren Kleber einsetzen und eine entsprechend dicke Klebeschicht anbringen. Ist die klebeschicht zu dünn wird es auch reissen.

    Ich hab in der Heckgarage Alu-Airlineschienen mit Sika 221 geklebt. Aber das ist nicht UV stabil, also für aussen ohne weiteren Schutz nicht geeignet. Die Kollegen können da sicher besser geeignete Produkte empfehlen.

    Gruss

    Urs

    In der Theorie entspricht die Praxis der Theorie...

  • KingWarin
    womobox-Spezialist
    Beiträge
    476
    Karteneintrag
    ja
    Wohnort
    Dahner Felsenland
    • 15. Januar 2023 um 11:25
    • #4

    Ahoi,

    ich habe meinen Alu-Türrahmen und die Füllung davon jeweils mit Körapur 666 verklebt. Das macht bisher keine Probleme, sind aber auch nur sehr kleine Alu-Flächen weshalb ich mir da auch weniger Sorgen machen würde.

    Ich hätte mich vom Gefühl her schon eher dem Steinhart angeschlossen, aber auch Steine haben ja unterschiedliche Härtegrade ;)

    Die Kederleisten (aus Alu) zur Aufnahme eines Sonnensegels/Plane habe ich hingegen mit Sika 252 verklebt (genauso die Halter für die Solarpanele, aber da ist es ABS-Kunststoff der auf GFK geklebt wurde).

    Die Leisten sind bei mir allerdings auch nur knapp 2,4m lang, aber ich kann bisher keine Risse o.ä. in der Klebung feststellen.

    Ich hatte im Kopf das Sika 221 eigentlich eher ein Dichtstoff ist der (trotzdem für den großteil unserer Anwendungen) ausreichend Klebekraft mit bringt) und Sika 252 ein dauerelastischer Klebstoff ist. Ebenso hatte ich im Kopf das sowohl 221 als auch 252 nicht UV-Stabil sind und es daher nochmal gesonderte UV-stabile Varianten davon gibt, die kann ich aber auf der Herstellerseite nicht (mehr) finden... Überlackierbar sind sie so oder so und damit lässt sich der ausreichende UV-Schutz ja sowieso erreichen (und unlackiertes Sika wird sehr schnell sehr unansehnlich).

    Für mich würde sich die Frage stellen was die Alu-Profile bezwecken sollen und abhängig davon würde ich dann den entsprechenden Kleber wählen.

    In den Kabinenbau-Videos von Martin Zech (Herr Lehmanns Weltreise) ist er bei NomadCampers und die Erklären ihre Kleberwahl (abgesehen davon das es Glaubensfrage ist) damit, dass die Kabine selbst mit einem leicht flexiblen Kleber geklebt ist und die Kantenprofile die Stabilität geben sollen und daher mit einem festen Kleber geklebt werden.

    Wenn die Profile also sowieso nur Kantenschutz sein sollen würde ich wahrscheinlich einen eher flexibleren Klebstoff wählen, wenn es Stabilität geben soll einen festeren.

    Vielleicht hat WoMoG da tiefere Erkenntnisse mit seiner Kabine die ja einen festen Alu-Rahmen hat...

    Gruß
    Sven

  • WoMoG
    womobox-Halbgott
    Beiträge
    695
    Karteneintrag
    nein
    • 15. Januar 2023 um 12:20
    • #5

    Hallo,

    ui, was soll ich sagen ? Sika 552 (ohne AT) für

    alles, ohne primern, anschleifen etc. nur mit

    dem 99,9% Alkohol abgewischt. Für die

    Klebespalte regelmäßig ein paar Drähte in

    das Kleberbett - fertig. Nur für die Miniklebeflächen

    der Dachlukendämpfer/Feststeller hat es nicht gereicht, da kam dann 2K Spiegelfußkleber

    zum Einsatz. Für den Dachlukenrahmen aus GFK war es auch Körrapur 666, glaub ich.

    Bis jetzt ist die Hütte noch nicht abgefallen,

    die Kederschienen halten das Tarp, die

    Airlineschienen anderes Gerödel. Wobei die

    das Auto hin und wieder tut, wofür es gebaut

    wurde ...

    Gruß Arno

    Einst mit Kleinst-SUV und Dachzelt , nun mit dem ProjeGt unterwegs

  • beginner
    Junior
    Beiträge
    28
    Karteneintrag
    nein
    • 15. Januar 2023 um 13:30
    • #6

    Die Aluprofile innen und aussen sollen die Kabine versteifen und stabil machen. Die Kabine selbst wurde mit Sabatack 750 verklebt. Das Video von Herr Lehman/Nomad Campers hab ich auch gesehen. Ich wollte an den Aluleisten aussen aber keine 3mm dicke Fuge haben sondern eine relativ dünne und habe Körapur da immer wieder gelesen. Dann aber irgendwann mal gelesen, dass es zu hart ist. Und jetzt dreh ich mal wieder am Rad weil ich nicht weiss wie ernst das zu nehmen ist...es scheint nämlich auch einige zu geben die mit Körapur 666 Alu geklebt haben und das scheint auch zu funktionieren.

    Ich möchte halt einen 2k Kleber um die 80x80mm Leisten vollflächig verkleben zu können. Mit 1k würde das nur an der Aussenseite austrocknen und innen nicht...ein 2K Kleber wie der Körapur 666 härtet auf der ganzen Fläche aus. Ich habe 30x30x30 Alueckprofile und eine 4800mm lange Kabine. Zwischen den Eckprofilen und den Längsprofilen mit 4194mm Länge gibt es auf jeder Seite eine 3mm Klebefuge...diese hatte ich dazu gedacht, dass das Material sich eben etwas bewegen kann.

    Tobias von 4Wheel24 sagt in einem deren Videos, dass die Ausdehnungskoeffizienten ähnlich sind. Ähnliche Info hab ich auch an andren Stellen nochmal gelesen. Ich finde leider keine Angabe zum Wärmeausdehnungskoeffizienten von so einem GFK Profil...könnte aber Montag mal bei Stadur nachfragen. Wenn sich Alu und das GFK ähnlich ausdehnen müsste ja auch das Spiel im Material geringer werden...

    Nehme ich den Wert von Wikipedia (da stehen zwei Werte) von GFK komme ich auf folgende Ausdehnungswerte bei 4200mm langen Profilen bei 50° Unterschied:

    GFK \alpha_{\|}27·10−6 1/K : 5.67mm Ausdehnung

    GFK \alpha_{\perp}7·10−6 1/K: 1,47mm Ausdehnung

    ALU 24 x 10-6. 5,04mm Ausdehnung

    Was die Werte hinter dem Alpha bedeuten weiss ich nicht...nimmt man jetzt aber mal die Aussage von Teichmann als Grundlage und vergleicht die Angabe Alpha mit zwei Strichen dann hat man eine Abweichung der beiden Materialien untereinander von 0,63mm...

    Erwärmt sich das Alu bei Sonnenstrahlung aber stärker würde sich das natürlich ändern.


    Vorbereitet zum Kleben ist schon alles. Die Profile sind angeschliffen, das GFK auch leicht und alles ist ordentlich sauber gemacht worden. Körapur 666 liegt auch bereit...aber wenn es der falsche Kleber ist kauf ich gern auch nochmal nen andren...

    5 Mal editiert, zuletzt von beginner (15. Januar 2023 um 13:53)

  • KingWarin
    womobox-Spezialist
    Beiträge
    476
    Karteneintrag
    ja
    Wohnort
    Dahner Felsenland
    • 15. Januar 2023 um 14:52
    • #7

    Ahoi,

    also ich traue dem 666 quasi alles zu. Klar ist meine Kabine sehr klein und wenig aufwändig, aber auf dem Edelstahlrahmen sitzt sie auch nur mittels vollflächiger 666 Verklebung und das bisher auch komplett ohne Probleme.

    Das mit den unterschiedlichen (oder eben nicht unterschiedlichen) Wärmeausdehnungskoeffizienten ist worauf nunmachmal mit seiner Ausführung zur Schublade auf dem Dach hinweist (ich bin mir nicht sicher ob er nicht auch in einem anderen Thread schon geschrieben hat das beides ungefähr den gleichen Wärmeausdehnungskoeffizienten hat oder ob das im Gespräch in Bodenheim war).

    Soll eigentlich auch nur heißen: Alu wird schneller warm als GFK, theoretisch dehnt es sich dann also auch bei (quasi) gleichem Wärmeausdehnungskoeffizienten unterschiedlich schnell aus.

    Von akuten Problemen oder auffälligkeiten durch diesen Materialmix hab zumindest ich noch nichts gelesen.

    Gruß

    Sven

  • nunmachmal
    womobox-Guru
    Beiträge
    4.693
    Karteneintrag
    ja
    Wohnort
    71634 Ludwigsburg
    Wohnkabine
    selbst gebaut
    • 15. Januar 2023 um 18:45
    • #8

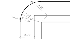
    Vorsicht bei Aluprofilen aussen am Fahrzeug. Die Profile sind scharfkantig und im Fahrzeugbau ein Radius von 5mm gefordert ist. Damit hat schon einmal einer hier im Forum Probleme gehabt.

    Gruß Nunmachmal

    Ich habe viel aus meinen Fehlern gelernt, ich glaube ich mache noch einen.

  • WoMoG
    womobox-Halbgott
    Beiträge
    695
    Karteneintrag
    nein
    • 15. Januar 2023 um 19:20
    • #9
    Zitat von nunmachmal

    Vorsicht bei Aluprofilen aussen am Fahrzeug. Die Profile sind scharfkantig und im Fahrzeugbau ein Radius von 5mm gefordert ist. Damit hat schon einmal einer hier im Forum Probleme gehabt.

    Gruß Nunmachmal

    Hallo,

    ich erinnere mich ...

    Gruß Arno

    Einst mit Kleinst-SUV und Dachzelt , nun mit dem ProjeGt unterwegs

  • beginner
    Junior
    Beiträge
    28
    Karteneintrag
    nein
    • 15. Januar 2023 um 19:36
    • #10

    Ich hab dazu vorab mit dem Prüfer gesprochen...die 5mm hat er nicht verlangt. Ich hab eine 3mm Abrundfräse gekauft mit der ich das ganze etwas entschärfe. Ist allerdings auch nicht so ein Korinthenkacker und unseren Projekten eher zugetan.

  • Online
    Picco
    Moderator
    Beiträge
    5.725
    Karteneintrag
    nein
    Wohnort
    Rorschacherberg / Schweiz
    • 16. Januar 2023 um 06:59
    • #11

    Hoi 'beginner'

    Mit 'Korinthenkacker' hat das wenig zu tun, da geht es um die Sicherheit im Strassenverkehr.

    Wenn jemand verletzt wird und die Untersuchungsbehörde merkt dass da Radien zu klein sind und das Auswirkungen auf die Verletzungen haben könnte wird sich die Versicherung um einiges Geld drücken, das dann Du aus dem eigenen Sack bezahlen kannst. Der TÜV-Prüfer steht da nicht wirklich in der Verantwortung.

    Gruss

    Picco

    http://www.comoltech.ch Meine Reiseberichte

  • nunmachmal
    womobox-Guru
    Beiträge
    4.693
    Karteneintrag
    ja
    Wohnort
    71634 Ludwigsburg
    Wohnkabine
    selbst gebaut
    • 16. Januar 2023 um 08:40
    • #12
    Zitat von beginner

    Ich hab dazu vorab mit dem Prüfer gesprochen...die 5mm hat er nicht verlangt. Ich hab eine 3mm Abrundfräse gekauft mit der ich das ganze etwas entschärfe. Ist allerdings auch nicht so ein Korinthenkacker und unseren Projekten eher zugetan.

    Was bleibt in der Ecke dann noch an Material übrig? Wenn die Platten stumpf aufeinander stehen, ist der Winkel das einzig kräfteübertagende Element. Der Schaumkern trägt nichts!

    Und ja, der Aufbauhersteller trägt die Verantwortung. Auch wenn der nette Onkel von TÜV das abgesegnet hat.

    Gruß Nunmachmal

    Ich habe viel aus meinen Fehlern gelernt, ich glaube ich mache noch einen.

  • Varaderorist
    womobox-Guru
    Beiträge
    1.292
    Karteneintrag
    ja
    Wohnort
    Kevelaer-Twisteden
    • 16. Januar 2023 um 09:08
    • #13

    Mit 'nem 3 mm Aluwinkel bleibt bei 3 mm Rundung noch 3 mm Materialstärke in der Rundung übrig. Das sollte passen. Bei 2mm Alu könnte es knapp werden.

    Gruß vom Niederrhein
    Michael

  • beginner
    Junior
    Beiträge
    28
    Karteneintrag
    nein
    • 16. Januar 2023 um 14:01
    • #14

    Der Punkt mit dem Unfall und Versicherung stimmt natürlich. hab nachgelesen und nur die Ecken brauchen wohl 5mm…Kanten mit 3mm ist ok. Ich hab 4mm dicke Profile.

    Zur Not klebe ich auf die Ecken noch was rundes auf…

    Hab heute mal die LKW angeschaut…da sind nirgends 5mm Radius an den Kanten. Aber was solls.

    Ein paar Telefonate später ist es wohl so, dass der Kleber diese Bewegung mitgehen kann solange dieser nicht zu dünn aufgetragen wird. Ein 1,4mm Abstand soll reichen. Der Kleber wird zwar hart und wirkt hart, kann sich aber ein paar mm bewegen.

    Zudem werde ich die 4,20m Stücke in der Mitte wohl nochmal durchschneiden um alles etwas zu entlasten. Die Ausdehnung sind dann nur noch 2,5mm…das schafft das Körapur sicher laut Aussage von zwei verschiedenen Fachberatern!

    Wie klebt ihr unterliegende Winkel an? Einfach mit Tape? So viele solcher langen Schraubzwingen kriege ich nicht her…

    3 Mal editiert, zuletzt von beginner (16. Januar 2023 um 15:43)

  • grijo
    womobox-Spezialist
    Beiträge
    289
    Karteneintrag
    nein
    • 18. Januar 2023 um 19:38
    • #15

    Von Sika gibt es den Kleber 521 UV.

    Den verwende ich aussen am Fahrzeug, hält Bombenfest, zumindest habe ich mein aufgeklebtes Aufstelldach auf dem Landrover noch nicht verloren :)

  • beginner
    Junior
    Beiträge
    28
    Karteneintrag
    nein
    • 19. Januar 2023 um 19:14
    • #16

    Ich hab vorgestern den Plan geändert und nur innen mit Körapur geklebt. Draussen wirds jetzt sabatack 750 :)

    Der braucht nur 5Grad zum härten was mir sehr entgegen kommt.

  • pseudopolis
    womobox-Halbgott
    Beiträge
    921
    Karteneintrag
    nein
    Wohnort
    Dort, wo die Kutsche gerade steht
    Wohnkabine
    selbst gebaut
    • 21. Januar 2023 um 22:38
    • #17

    Hi

    körapur666 ist vor allem von der konsistenz her gut zu verarbeiten. Die beschafenheit ist ja eher wie griechischer yoghurt, das lässt sich auch bei grossflächigen verklebungen (zb lange profile) gut anpressen, dass der überschüssige kleber rausquillt. Das wird mit 1K pu-kleber so nicht gehen, der ist zu zäh. Obwohl der pu-kleber sicher auch gut halten würde.

    Zum zweiten hat der körapur666 eine definierte topfzeit, auf die man sich gut einstellen kann. PU-kleber wird nach einer weile zäher, und nimmt dann keine klebungen mehr an. Man darf die zeit nicht unterschätzen, die gebraucht wird um kleber aufzubringen und vorbereitungen zu treffen.

    Bleib als lieber beim körapur666.

    Michi

  • nunmachmal
    womobox-Guru
    Beiträge
    4.693
    Karteneintrag
    ja
    Wohnort
    71634 Ludwigsburg
    Wohnkabine
    selbst gebaut
    • 22. Januar 2023 um 11:34
    • #18
    Zitat von pseudopolis
    ......

    Bleib als lieber beim körapur666.

    .......

    und verwende GFK-Profile. Materialmix war noch nie gut.

    Ich habe viel aus meinen Fehlern gelernt, ich glaube ich mache noch einen.

  • beginner
    Junior
    Beiträge
    28
    Karteneintrag
    nein
    • 22. Januar 2023 um 22:12
    • #19

    Naja...ich hab mir das ja etwas angesehen. Sowohl bei Kühlkoffern als auch bei anderen Nutzfahrzeugen werden Aluprofile genutzt und auch Aufbauer wie Nomad Campers oder 4Wheel24 nutzen Aluprofile. Ich hab die letzten Tage dazu viel telefoniert mit Klebeherstellern und auch bei zwei Firmen angerufen. Die Leute waren echt freundlich und haben mir auskunft gegeben...sowohl zum Aluprofil als auch zu den verwendeten Klebern. Körapur wird da oft genutzt aber sie sagen der Sabatack wird seinen Dienst auch tun.

    Ich mach das jetzt mit Aluprofilen weil die da sind und da ich draussen keine Temperaturen hinkriege die für Körapur klappen nehm ich den 1k Kleber. Hab mit dem auch schon die Kabine zusammen geklebt und das hat super funktioniert. Bewährtes Teamplay...alles vorbereiten, eine Akkukartuschenpresse verwenden und dann schön Profil für Profil mit Kleber versehen und ankleben. Damit gibts dann auch keine Probleme mit der Zeit. Zu zweit funktionierte das beim Koffer kleben recht gut. Zudem braucht der Kleber im Gegensatz zu Körapur 666 nicht 15° sondern nur 5° Mindesttemperatur. 15° sind schwer zu erreichen, aber 8-9 grad kriege ich gut hin.

    Zudem hab ich noch ne Dehnungsfuge in der Mitte hinzugefügt. Damit sollte das alles funktionieren.

    Mir wurde noch der Tipp gegeben die Aluprofile vorher ins Kalte zu legen und im kalten zu verarbeiten und dann in das wärmere Zelt zu bringen. So bildet sich etwas Kondenswasser was dem Kleber hilft. Den Tipp geb ich gern weiter. :)

    Vielen Dank fürs Feedback.

    Einmal editiert, zuletzt von beginner (22. Januar 2023 um 22:18)

  • VWBusman
    womobox-Guru
    Beiträge
    4.928
    Karteneintrag
    ja
    Wohnort
    Nord-Schwarzwald
    • 23. Januar 2023 um 07:38
    • #20

    Hallo beginner,

    4Wheel24 ist kein Hersteller, er vertreibt nur Kabinen zu seinen Fahrzeugen.

    Einer seiner Zulieferer ist Boxmanufaktur.

    Was natürlich nichts daran ändert das die Aufbauten Alukanten haben.

    Gruß Christopher

Jetzt mitmachen!

Mit einem Benutzerkonto kannst du das womobox Forum noch besser nutzen.
Als registriertes Mitglied kannst du:
- Themen abonnieren und auf dem Laufenden bleiben
- Dich mit anderen Mitgliedern direkt austauschen
- Eigene Beiträge und Themen erstellen

Benutzerkonto erstellen Anmelden

Spenden-Ziel

Jährlich (2026)

63,5 %

63,5% (317,50 von 500 EUR)

Jetzt spenden
  1. Nutzungsbedingungen
  2. Datenschutzerklärung
  3. Impressum
Gefällt es dir hier? Dann bitte jetzt :)
Community-Software: WoltLab Suite™