1. Portal
  2. Forum
    1. Forenübersicht
    2. FAQ - Fragen rund ums Forum
  3. Camper
    1. Bautagebücher
    2. Camper Galerie
    3. Wissensbasis
  4. Treffen
    1. Anstehende Treffen
    2. Impressionen vergangener Treffen
  5. Reisen
    1. Reiseziele
    2. Reiseberichte
    3. Urlaubsfotos
  • Anmelden
  • Registrieren
  • Suche
Dieses Thema
  • Alles
  • Dieses Thema
  • Dieses Forum
  • Artikel
  • Seiten
  • Forum
  • Termine
  • Galerie
  • POIs
  • Blog-Artikel
  • Erweiterte Suche
  1. womobox & Leerkabinen-Forum
  2. Forum
  3. Camping-Fahrzeuge
  4. Bautagebuch

Leerkabinen auf dem Wasser - Hausboot

  • ST1100
  • 30. November 2017 um 12:58
  • Leerkabinen-Wolfgang
    Administrator
    Beiträge
    6.076
    Wohnort
    Rheinhessen, Bodenheim
    Wohnkabine
    Sonstiges
    • 21. Dezember 2017 um 13:21
    • #121

    Hi Tommy,

    ich glaube, Dein Projekt kommt schneller voran als Du Dir vorgestellt hast, oder? :mrgreen:

    Wenn ich Deine Pläne richtig lese, hast Du momentan die Haupt-Carportdachsparren in Längsrichtung geplant. Das bedeutet einerseits, daß Deine Stützen ganz außen auf der Bodenkonstruktion stehen müssen, andererseits aber auch, daß die Hauptsparren im hinteren Bereich 2,7-2,8m überbrücken müssen, nach Deinen letzten Plänen mit dem längs geparkten Hänger sogar >3m.

    Ich hätte die Carport-Stützen 25cm nach innen in Verlängerung der Kabinenwände und die Haupt-Carportsparren dann quer zur Fahrtrichtung (und 25cm über die Stützen überragend) gesetzt. Dann wäre der längste freitragende Bereich der Hauptträger nur 2,25m. Die 'Nebensparren' kämen dann in Längsrichtung, wären dann zwar etwas länger als bei Deiner Planung, aber das sehe ich als unproblematischer an, da sich die Last auf dem Carportdach auf mehr 'Nebensparren' verteilt als auf die 3 Hauptsparren in Deiner Planung.

    Und da Du geschrieben hast, daß Du vermutlich mind. soviel Zeit auf der Heck- wie auf der Dachterrasse verbringen wirst, würde ich auch die mit WPC-Dielen belegen - aus den gleichen Gründen, die Du für die Dachterrasse genannt hast. Und auch die Treppenstufen würde ich in Holz ausführen: wenn die Sonne drauf brennt, dürfte das Alu-Warzenblech geringfügig mehr als fußwarm werden. Mit barfuß aus der Kabine auf die Dachterrasse ist dann nix... :?

    Viele Grüße
    Leerkabinen-Wolfgang

    die nächsten Festivitäten in http://www.Bodenheim.de:

    01.-03.05.2026: 25. Leerkabinen-Treffen

    erstes Juni-WE (05.-08.06.2026): Weinfest - Stellplatz nicht nutzbar

    vierter Sept.-Samstag (26.09.2026): Weinprobe in den Weinbergen


    Stellplatz von Nov. bis Frühjahr 2026 wg. Umbau geschlossen! Bei Fragen eMail/PN an mich

  • ST1100
    womobox-Spezialist
    Beiträge
    315
    • 21. Dezember 2017 um 19:14
    • #122

    Erstmal ein Foto, das ich 2012 in Rom gemacht habe :D


    Dann hab ich mich vertan beim Profilrechner. 200 N sind ja nur 20 kg.
    So stimmts jetzt:

    Bilder

    • Profilrechner.jpg
      • 114,53 kB
      • 956 × 843
    • Blechdach_Rom_Tiber_2.jpg
      • 91,7 kB
      • 840 × 666

    http://home.degnet.de/tommy/motorrad-haenger/

  • ST1100
    womobox-Spezialist
    Beiträge
    315
    • 21. Dezember 2017 um 19:26
    • #123

    Dann habbich die Terrassen mit 40 cm Sparrenabstand (für WPC) mit 2 mm Wandstärke neu gezeichnet und berechnet.


    Durch die Verringerung der Wandstärke ist das Gewicht trotz mehr Sparren auf die Hälfte gesunken, denn WPC statt Warzenblech wiegt auch nur 1,8 statt 12 kg pro m².

    Euer Feedback beflügelt natürlich die Weiterentwicklung - trotzdem möchte ich die Stützen ganz außen lassen, Wolfgang :wink:
    Allein schon wegen der LKW-Planenverkleidung und der Heckklappe und Rampe als "Türen".

    Tom

    Bilder

    • Stand_2017_12_20.jpg
      • 202,7 kB
      • 1.200 × 820

    http://home.degnet.de/tommy/motorrad-haenger/

  • ST1100
    womobox-Spezialist
    Beiträge
    315
    • 21. Dezember 2017 um 21:11
    • #124

    Hab grad ne Testfahrt gebucht - eine Woche BunBo 1160 ab Brandenburg/Plaue im September 2018 :mrgreen:

    http://home.degnet.de/tommy/motorrad-haenger/

  • Mobilix
    womobox-Halbgott
    Beiträge
    964
    Wohnort
    Gengenbach
    • 21. Dezember 2017 um 22:38
    • #125

    Hallo Tommy,

    ich hatte für einen Terassenbelag mal WPC verglichen mit Douglasienholz und Bankirai-Bohlen. Mir ging es vor allem um die Fußfreundlichkeit und die Rutschfestigkeit. The winner is "Bankirai" - ganz klar vor allen anderen. Dieses Kunstholz heizt sich in Null-komma-nichts mordsmäßig auf und ist recht rutschig. Wobei man letzteres ja durch eine gewisse Rauhigkeit der Oberfläche beeinflussen kann.
    Aber so, wie es handelsüblich daher kommt, als Terassenbohle, da ist Bankirai für mich das beste - nicht das günstigste.

    Gruß,
    Mobilix

    Wenn der Hammer das einzige Werkzeug ist, wird jedes Problem zum Nagel...

  • Leerkabinen-Wolfgang
    Administrator
    Beiträge
    6.076
    Wohnort
    Rheinhessen, Bodenheim
    Wohnkabine
    Sonstiges
    • 22. Dezember 2017 um 09:07
    • #126

    Hi Tommy,

    ich hatte die Stützen nach innen verlegt, um ein Reiben der Plane an den Stützen zu vermindern - aber das mit den Auffahrrampen habe ich nicht bedacht ;)

    Allerdings bleibe ich dabei, daß Deine Idee, die Hauptsparren in Längsrichtung zu verlegen, statisch nicht die glücklichste Wahl ist. Dazu habe ich einmal die Stützenpositionen für die Lösung mit quer zur Fahrtrichtung stehendem Hänger eingetragen:

    Man sieht: die Hauptsparren müssen 3,2m überbrücken - bei querliegenden Hauptsparren aber nur 2,5m. Daß die Nebensparren dann diese 3,2m abdecken müssen, sehe ich aufgrund der Vielzahl dieser Sparren als unkritischer an.

    Übrigens: ich dachte, die Bug-Klappterrasse sollte vorne gerundet sein? Wie werden die Klappterrassen eigentlich gestützt? Nach oben über ein Seil fixiert? Das gibt dann - zumindest beider Heckterrasse - sehr hohe Kräfte in Bootslängsrichtung, die Dein Carport dann auch aufnehmen können muß, sprich da sind noch einige Diagonalverstrebungen fällig bzw. das Tragseil müßte dann über den hintersten Pfosten wieder nach unten in Richtung des mittleren Pfosten laufen, wo es dann direkt auf dem Tragrahmen aufgewickelt werden müßte, was natürlich die Ausfahrt mit den Landfahrzeugen erschwert...
    Und auch wenn es ein paar Zentimeter mehr Platz bietet, die Heckterrasse abzusenken und somit etwas länger zu machen: ich würde sie direkt an den tragenden Rahmen auf Höhe Pontonoberkante anbringen, weil die Gewichtskräfte einfach besser in die Tragkonstruktion eingeleitet werden können. Wenn Die Klappe dann statt auf 90° auf vielleicht 100° abgesenkt werden kann, hättest Du auch gleich eine gute Auffahrrampe für die Boote ;) .

    Gruß
    Leerkabinen-Wolfgang

    Bilder

    • Stand_2017_12_20a.jpg
      • 290,61 kB
      • 1.200 × 820

    die nächsten Festivitäten in http://www.Bodenheim.de:

    01.-03.05.2026: 25. Leerkabinen-Treffen

    erstes Juni-WE (05.-08.06.2026): Weinfest - Stellplatz nicht nutzbar

    vierter Sept.-Samstag (26.09.2026): Weinprobe in den Weinbergen


    Stellplatz von Nov. bis Frühjahr 2026 wg. Umbau geschlossen! Bei Fragen eMail/PN an mich

  • ST1100
    womobox-Spezialist
    Beiträge
    315
    • 22. Dezember 2017 um 15:10
    • #127

    Hallo Wolfgang,

    ob die Sparren längs oder quer verlaufen, spielt jetzt noch keine Rolle.
    Aber danke für Deine Bedenken. Das Dach ist ja fast quadratisch.
    Mir ging's primär um die Gewichts- und Einkaufskalkulation.

    Auch wie hoch die Heckterrasse hängt, entscheidet sich erst nach Fahrversuchen und Höhe der Heckwelle.
    Verstrebungen und Abspannungen sind klar notwendig, im Grunde ist das ja ein Dachstuhl.

    Wo die vorderen Pfosten stehen werden ist auch noch völlig offen.
    Symmetrie ist hier zweitrangig.
    Die Auffahrtrampe stützt und versteift das Dach backbords.


    Die Frontterrasse stützt sich nur nach unten ab. Die Rundung hab ich eingearbeitet.
    Die Heckterrasse hängt an zwei Edelstahlseilen, die über Rollen laufen.
    Die Lastverteilung und den optimalen Platz für die Winde rechne ich erst später.


    Den Motor hab ich jetzt zentral hinter dem Haus untergebracht.
    Tropenholz kommt für mich nicht infrage.


    Tommy

    Bilder

    • Stand_2017_12_23.jpg
      • 181,44 kB
      • 1.920 × 688
    • Stand_2017_12_22.jpg
      • 195,16 kB
      • 1.300 × 885
    • Stand_2017_12_21.jpg
      • 161,82 kB
      • 1.600 × 644

    http://home.degnet.de/tommy/motorrad-haenger/

  • nunmachmal
    womobox-Guru
    Beiträge
    4.579
    Wohnort
    71634 Ludwigsburg
    • 22. Dezember 2017 um 15:29
    • #128

    Du musst bedenken, die Profile sind 6m lang. Es gibt da unter umständen jede menge verschnitt.

    Gruß Nunmachmal

    Ich habe viel aus meinen Fehlern gelernt, ich glaube ich mache noch einen.

  • ST1100
    womobox-Spezialist
    Beiträge
    315
    • 22. Dezember 2017 um 17:42
    • #129
    Zitat von nunmachmal

    Du musst bedenken, die Profile sind 6m lang. Es gibt da unter umständen jede menge verschnitt. Gruß Nunmachmal

    Da hab ich Glück Peter, mit meinen ca. 5 Metern Breite und der Bugterrasse für die Resteverwertung.
    Der Verschnitt schlägt natürlich finanziell zu Buch, aber wenigstens nicht beim Gewicht.

    Aber ich zahl nur ca. 4,70 inkl. MwSt. für das Kilo Alu. Das Rechteckprofil 100 x 50 x 2 mm wiegt 1,58 kg/m.
    Theoretisch könnte ich die Winkel zum Vernieten der Sparren aus den Resten sägen.

    Tommy

    http://home.degnet.de/tommy/motorrad-haenger/

  • ST1100
    womobox-Spezialist
    Beiträge
    315
    • 24. Dezember 2017 um 14:21
    • #130

    Auch andere haben gute Ideen :D
    Guggst Du hier!

    Frohe Weihnachten :)


    edit womobox-MOD: Bild aus Urheberrechtsgründen durch Link auf Original ersetzt

    http://home.degnet.de/tommy/motorrad-haenger/

  • holger4x4
    womobox-Guru
    Beiträge
    7.249
    Wohnort
    Bergisches Land
    • 24. Dezember 2017 um 14:25
    • #131

    Auch nicht schlecht! Uns sogar unterkellert :wink:

    Gruß, Holger

  • ST1100
    womobox-Spezialist
    Beiträge
    315
    • 27. Dezember 2017 um 15:54
    • #132

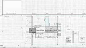
    Ich hab mal wieder mal mit Excel gemalt :D und hab mir den zentralen Einrichtungsblock mit 3D-Tetris vorgenommen.


    Tommy

    Bilder

    • Stand_2017_12_24.jpg
      • 198,97 kB
      • 1.746 × 1.117

    http://home.degnet.de/tommy/motorrad-haenger/

    Einmal editiert, zuletzt von ST1100 (27. Dezember 2017 um 17:56)

  • holger4x4
    womobox-Guru
    Beiträge
    7.249
    Wohnort
    Bergisches Land
    • 27. Dezember 2017 um 16:53
    • #133

    Hmm, wie geht das denn mit deinem Haustechnikraum?
    Ziehst du dann so ein Schrankteil ganz raus und schiebst das bei Seite? Ich nehme mal an, die sind gefüllt auch halbwegs schwer.
    Und dann hältst du die Luft an und "begehst" den Technikraum?

    Gruß, Holger

  • ST1100
    womobox-Spezialist
    Beiträge
    315
    • 27. Dezember 2017 um 18:16
    • #134

    Hallo Holger

    Der Plan ist mal grundsätzlich, dort nur Dinge unterzubringen, die von selbst funktionieren und die nur bei Störungen zugänglich sein müssen.
    Die drei Apothekerschränke bekommen oben und unten Schienen zur Führung und rollen auf Schwerlastrollen.
    Wenn ich rein muss, werden die drei ganz rausgerollt und einer davon um die Ecke gebracht.

    Genauso die vier Schubladen unterm Bett, die für schwerere Sachen gedacht sind.
    Das hab ich schon bei meinem allerersten Eigenbau-Bett mit 15 so gemacht, um mir den Schrank im Zimmer zu sparen und das Bett größer machen zu können :lol:

    Der Lattenrost kann hälftig nach links und rechts hochgeklappt werden, damit ich bei Bedarf an die zwei großen Tanks und alle Wasserleitungen komme.
    Die Tanks reichen aber auch noch 40 cm ins Bad unter Boiler und Waschbecken und den Hochschrank dort.

    Über dem Bett wäre auch noch Platz für Stauraum, ich brauch keine Stehhöhe auf der Matratze mehr :lol:

    Tommy

    http://home.degnet.de/tommy/motorrad-haenger/

  • Mobilix
    womobox-Halbgott
    Beiträge
    964
    Wohnort
    Gengenbach
    • 27. Dezember 2017 um 22:36
    • #135

    Ich vermissen den Benzintank bzw. den für Diesel.

    Wenn der Hammer das einzige Werkzeug ist, wird jedes Problem zum Nagel...

  • ST1100
    womobox-Spezialist
    Beiträge
    315
    • 27. Dezember 2017 um 23:55
    • #136

    Hallo Mobilix,

    die Benzintanks kommen unter den Carport, damit sie zugänglich bleiben, ohne bei Problemen den Boden im Haus öffnen zu müssen.
    Da sind sie auch leicht zu betanken, zur Not direkt aus dem Kanister im Autokofferraum. Und ich hab kurze Wege zum Motor.

    Mehr als 100 Liter Sprit brauch ich eh nicht. Außerdem muss ich beim Kraftstoff nicht auf Frostsicherheit achten.
    Das ist mit ein Grund, warum alle Wassertanks und -rohre mitten im Haus über der Bodenisolierung positioniert sind.

    Ein paar Fragen noch:

    Wie kann ich eigentlich günstig soliden Wasserdruck zum Duschen hinkriegen?

    Wo würdet Ihr die Solar-Ladegeräte unterbringen, wenn die Batterien unter der Front-Terrasse Ballast spielen?
    Die Solarmodule sind natürlich auf dem Hausdach.

    Kennt jemand Solarmodule, die man direkt als Dacheindeckung verwenden kann?

    Wieviel Wasser-Kollektor-Fläche brauch ich für nen 80-Liter-Warmwasserspeicher?

    Danke - Tommy

    http://home.degnet.de/tommy/motorrad-haenger/

  • Myk
    womobox-Spezialist
    Beiträge
    414
    • 28. Dezember 2017 um 10:54
    • #137

    Hallo Tommy,

    auf YouTube gibt es eine Tiny House Video, mit Möbellösungen die Deinem Bedarf recht nahe kommen. Gib mal folgendes ein: “How would a Swiss Army knife look if it were a tiny house”.

    Zur Planung der Wasseranlage empfehle ich Dir, zunächst mal ein Schema zu skizzieren und erst wenn Du das Anlagenprinzip klar hast, in die Auslegung der Komponenten zu gehen.
    Ich vermute ja, dass Du einen geringen Warmwasserverbrauch haben wirst. Morgens Duschen und abends Abwaschen. Viel mehr als 15l kommt da pro Tag normal nicht zusammen. Um die gesamte Technik einfach zu halten, könntest Du ja die Elektrosolaranlage so groß dimensionieren, dass Du damit auch die paar Wattstunden für die Warmwasserbereitung übrig bleiben. Bedenke dabei, dass Du dort quasi immer alleine sein wirst und deswegen dein Verbrauch echt niedrig ist.

    P.S. Die Bootskarten sind schon unterwegs.

    Grüße,
    Myk


    Gesendet von iPad mit Tapatalk

  • ST1100
    womobox-Spezialist
    Beiträge
    315
    • 28. Dezember 2017 um 20:18
    • #138

    Danke Myk - kannte ich noch nicht, aber aus amazing spaces das hier :mrgreen:

    Externer Inhalt www.youtube.com
    Inhalte von externen Seiten werden ohne deine Zustimmung nicht automatisch geladen und angezeigt.
    Durch die Aktivierung der externen Inhalte erklärst du dich damit einverstanden, dass personenbezogene Daten an Drittplattformen übermittelt werden. Mehr Informationen dazu haben wir in unserer Datenschutzerklärung zur Verfügung gestellt.

    Aber ich werde den Luxus von PLATZ haben.
    40 qm, aber nur 11,5 davon sind fix vermöbelt.
    Selbst wenn ich Sofa, Schreibcontainer und Tische abziehe bleiben noch 24 qm Freiraum.
    Und die wirken durch meine Glaswände noch größer.

    Ich freu mich schon auf die Karten :D Danke !

    Tommy

    http://home.degnet.de/tommy/motorrad-haenger/

    Einmal editiert, zuletzt von ST1100 (28. Dezember 2017 um 20:41)

  • ST1100
    womobox-Spezialist
    Beiträge
    315
    • 28. Dezember 2017 um 20:30
    • #139

    Vier weitere Tabellenblätter:

    Steuerbordansicht

    Heckansicht

    Backbordansicht

    Bugansicht

    Tommy

    Bilder

    • Stand_2017_12_25_H.jpg
      • 89,37 kB
      • 1.546 × 821
    • Stand_2017_12_25_F.jpg
      • 82,3 kB
      • 1.513 × 724
    • Stand_2017_12_25_B.jpg
      • 130,84 kB
      • 1.701 × 916
    • Stand_2017_12_25_S.jpg
      • 118,79 kB
      • 1.701 × 851

    http://home.degnet.de/tommy/motorrad-haenger/

  • ST1100
    womobox-Spezialist
    Beiträge
    315
    • 28. Dezember 2017 um 23:40
    • #140
    Zitat von Myk

    Zur Planung der Wasseranlage empfehle ich Dir, zunächst mal ein Schema zu skizzieren und erst wenn Du das Anlagenprinzip klar hast, in die Auslegung der Komponenten zu gehen.
    Ich vermute ja, dass Du einen geringen Warmwasserverbrauch haben wirst. Morgens Duschen und abends Abwaschen. Viel mehr als 15l kommt da pro Tag normal nicht zusammen. Um die gesamte Technik einfach zu halten, könntest Du ja die Elektrosolaranlage so groß dimensionieren, dass Du damit auch die paar Wattstunden für die Warmwasserbereitung übrig bleiben. Bedenke dabei, dass Du dort quasi immer alleine sein wirst und deswegen dein Verbrauch echt niedrig ist.

    Hallo mein Meisterhausmeister,

    15 Liter warmes Wasser sind aber sehr spartanisch und ich hab ja leicht Platz für 80 Liter plus ne fette Isolierung rundrum.
    Es soll ja auch für ne Wanne reichen, ich bade ungern lauwarm. Reichen 2 qm Kollektor dafür?
    Die Abwärme des Motors nehm ich auch zur Wassererwärmung.
    Und Strom zur Not auch, aber eigentlich ist er zu wertvoll zum Heizen.

    Ne kleine Gas-Heizung kann aber auch Brauchwasser mit erwärmen.
    Ideal wäre ein Blockheizkraftwerk im Miniformat für Fußbodenheizung, Warmwasser und Stromerzeugung.
    Das wird's aber nicht geben für 50-qm-Wohnungen, oder?

    Die Lichtmaschine des Motors bringt im Betrieb 480 Watt, der kleine Honda Generator für Notfälle 1200 W Dauerleistung.
    Dachfläche hab ich mehr, als ich mir photovoltaisch und akkufinanziell leisten kann.

    Achja - ein kleiner Holzofen wie bei Miraflores kommt definitiv auch ins Wohnzimmer.

    Jetzt lass Dein Haustechnikhirn mal arbeiten und zeig mir, was ich alles noch nicht weiß oder nicht bedacht habe.

    Danke - Gruß - Tommy

    http://home.degnet.de/tommy/motorrad-haenger/

Jetzt mitmachen!

Mit einem Benutzerkonto kannst du das womobox Forum noch besser nutzen.
Als registriertes Mitglied kannst du:
- Themen abonnieren und auf dem Laufenden bleiben
- Dich mit anderen Mitgliedern direkt austauschen
- Eigene Beiträge und Themen erstellen

Benutzerkonto erstellen Anmelden

Spenden-Ziel

Jährlich (2025)

105,3 %

105,3% (579,00 von 550 EUR)

Jetzt spenden

Tags

  • Hausboot
  1. Nutzungsbedingungen
  2. Datenschutzerklärung
  3. Impressum
Gefällt es dir hier? Dann bitte jetzt :)
Community-Software: WoltLab Suite™