1. Portal
  2. Forum
    1. Forenübersicht
    2. FAQ - Fragen rund ums Forum
  3. Camper
    1. Bautagebücher
    2. Camper Galerie
    3. Wissensbasis
  4. Treffen
    1. Anstehende Treffen
    2. Impressionen vergangener Treffen
  5. Reisen
    1. Reiseziele
    2. Reiseberichte
    3. Urlaubsfotos
  • Anmelden
  • Registrieren
  • Suche
Dieses Thema
  • Alles
  • Dieses Thema
  • Dieses Forum
  • Artikel
  • Seiten
  • Forum
  • Termine
  • Galerie
  • POIs
  • Blog-Artikel
  • Erweiterte Suche
  1. womobox & Leerkabinen-Forum
  2. Forum
  3. Ausbau: Installation und Technik
  4. Heizen und Kühlen

Plan Warmluftverteilung

  • richis
  • 6. Januar 2017 um 18:00
  • richis
    Experte
    Beiträge
    132
    • 6. Januar 2017 um 18:00
    • #1

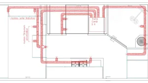
    Hallo Leute,

    die nächste Planbaustelle.

    Ich bin gerade dabei die Warmluftverteilung der Heizung zu planen.
    Die Heizung wird eine Truma Combi 6 D.

    Auslässe habe ich folgende geplant:
    Zwei beim Fußraum der Dinette
    Einem im Bad
    Zwei im Stauraum, wobei die verschließbar sind
    Zwei unter der Matratze
    Fünf im Flur.

    Anbei Zeichnungen der Warmluft und der Raumaufteilung.


    Wäre das so machbar?
    Irgendwelche Änderungsvorschläge?

    Vielen Dank!

    Grüße

    Richi

    Bilder

    • Uebersicht.jpg
      • 111,69 kB
      • 1.024 × 620
    • Richimobil Plan Warmluftverteilung 06-01-2017.jpg
      • 175,49 kB
      • 1.486 × 780

    Richi

    OVERLANDTRUCKS
    Richard Schätzl
    Kusserstrasse 11
    94051 Hauzenberg
    Germany

    info@overlandtrucks.de
    http://www.overlandtrucks.de

  • VWBusman
    womobox-Guru
    Beiträge
    4.886
    Wohnort
    Nord-Schwarzwald
    • 6. Januar 2017 um 18:51
    • #2

    Hallo Richi,

    Du solltest versuchen einen Ausströmer möglichst nahe an die Türe zu setzen. Wenn Du die Abwärme der Combi D gut nutzt brauchst Du im unmittelbaren Sitzgruppenbereich nicht unbedingt noch einen Ausströmer. MAch in den Sitzkasten in dem die Heizung verbaut wird ein Gitter oder andere Öffnungen zu Wohnraum hin und die Heizung wird das etwas mit heizen.
    Ich würde auf den kurzen Strang verzichten und ihn soweit es geht am Rand der Kabine ums Heck legen damit Du nicht so viel Schwitzwasser an den Kabinenwänden bekommst.
    Den Ausströmer diesen Schlauches kannst Du dann irgendwo am Küchenblock machen

    Gruß Christopher

    Mercedes Vario 816 mit Holzkoffer - steht zum Verkauf

  • campo
    womobox-Guru
    Beiträge
    1.026
    Wohnort
    Belgien
    • 7. Januar 2017 um 09:36
    • #3

    12 Ausströmer ?
    Dann verteilst du so klein das du 12 x Nicks mehr bekommst.
    Diese Heizung ist (und andere auch nicht) nicht der Lage um ein so extrem langen Luft verteil System gut zu bedienen. Denke daran das du bei jeden Meter, jeden Winkel, jeden Ausströmer bis zu 30% Strömung Verluste hast. Alle Verluste Aufgezählt gibt’s dann keine wärme zum Verteilen mehr.
    Der Schlauch wird warm aber die Wärme kommt nicht aus der Schlauch.
    Also besser maximal 4 bis 6 Ausströmer und halbiere die totale schlauchlänge.
    Gruss Campo

    Jetzt Iveco Daily 4x4 7T, vorher TGM 13290 4x4

  • clerk
    Experte
    Beiträge
    168
    Wohnort
    Planet Erde
    • 7. Januar 2017 um 10:30
    • #4

    Hallo, das hir ist zwar ein anderes System aber vieleicht gibt es sowas auch für deine Heizung vom Hersteller. Sie Seite 24

    https://www.google.de/url?sa=t&rct=j…142059868,d.bGg


    Praktisch sieht das so aus, dass für eine bestimmte Heizung mit bestimmtem Luftmengendurchsatz ein bestimmter maximaler Wiedersatndswert erlaubt ist. jedes Lüftungsrohrbauteil hat einen bestimmten Wert. Die Summe darf den max Wert der Heizung nicht übersteigen.

    Beispiel:
    Webasto Air Top 5000 kann bis zu 375 Punkte belastet werden. Zwei kleine verschließbare Ausstömer, ein nicht verschließbarer Ausströmer, ein paar Meter Rohr, ein paar Bögen und ein paar Abzweigungen ergeben 268 Punkte. Das passt also und man könnte noch Ausstömer und Bögen dran hängen.

    Die Air Top 5000 hat einen Luftdurchsatz von 218m³ (gegen 0,5 bar) pro Stunde und einen elektrischen Verbrauch von 90W. (wenn die mal läuft ist das nur der Lüfter)

    Deine Truma Combi 6 D hat viel geringere Werte (mehr Luftdurchsatz bei kleinerem Lüfter = weniger Wiederstand erlaubt), alle hab ich aber nicht im Kopf. Luftdurchsatz 287m³ pro Stunde und der Lüfter hat glaub ich 23W. Praktisch würde das heißen, dass die maximal erlaubte Wiedersatndspunktezahl bei Irgendwas um 55 liegt. Sicher weiß ich, dass bei der D6 nur ein verschließbarer Auslass bei vier verwendeten Abgängen vorhanden sein darf. Wenn nur drei Abgänge vewendet werden, darf nur ein verschließbarer Auslass verwendet werden, wenn im gleichen Strang mindestens ein nicht verschließbarer Auslass vorhanden ist.

    Solche Rohrverlegungstabellen muss es aber eigentlich von Truma geben. Frag bitte bei Truma mal nach und lass mir die Tabellen zukommen, wenn du sie erhalten hast. Diese pack ich dann in meine Datenbank. Wenn mal wieder jemand eine Frage hat, dann kann ich genauer antworten.

    Gruß, clerk

  • Anton
    womobox-Guru
    Beiträge
    2.712
    Wohnort
    Am Fuß der Homert
    • 7. Januar 2017 um 14:11
    • #5
    Zitat von campo

    12 Ausströmer ?


    Hallo

    da schließ ich mich an! Das ist wirklich etwas unnötig!


    Wir haben bei unserer Webasto AirTop 4000 im Fußraum unterm Tisch einen Hauptausströmer von 90mm der auch nicht verschließbar ist. Vorher zweiget ein 60er Rohr ab in den Schlafraum, und davon geht vorher noch mal ein 60er ab in Bad. An dem Rohr das ins Bad ist im Stauraum noch mal ein Ausströmer. Schlafraum, Bad umd Stauraum haben verschließbare Ausströmer, so das wir etwas regulieren können wo den mehr Wärme hingeleitet werden soll.

    Wir waren über Neujahr bei - 8 bis -10 Grad unterwegs und hatten es immer schön warm im Auto. Da wir aber den Stauraum mitgeheizt haben, hätte es im Bad etwas wärmer sein können. Es war aber völlig OK wenn man nicht gerade Kuschelwärme beim Schei... braucht. :wink:

    Der 90er Auslass darf nach Websto Angaben nicht verschließbar sein eben wegen der schon genannten Widerstandszahlen die man zusammenrechnen muss.


    VG

    Anton

    Wir brauchen dringend ein paar Verrückte - seht euch doch mal um, wo uns die Vernüftigen hingebracht haben!

  • wiru
    womobox-Guru
    Beiträge
    1.131
    Wohnort
    Treuchtlingen
    • 7. Januar 2017 um 16:40
    • #6

    Ich hab die Truma combi 4 (Gas) und 3 Abgänge genutzt. Vor 4 Tagen hab ich aus Versehen die Hauptausström Klappe geschlossen, wärend alle anderen Klappen auch zu waren. Prompt hats mir den blindstopfen am 4. Abgang rausgedruckt und den Heizungsstaukasten so aufgeheizt, dass die Heizung auf Störung ging. Also immer einen Strang offen lassen! Jetzt hab ich die Klappe zum Wohnraum entfernt, damit das nicht nochmal passiert... übrigens reichen die 4kw locker auch bei-20 Grad

    Gruß, Willi

    unser Womo: Sprinter 4x4 mit Ormocar-Kabine
    Ausbau-und Reiseblog: http://www.caribou.wirblogger.de

  • Myk
    womobox-Spezialist
    Beiträge
    414
    • 7. Januar 2017 um 20:31
    • #7

    Hallo Richi,

    die vier Stutzen am Ausgang der Heizung kommen ja aus einem gemeinsamen Hohlraum im Heizungsgerät. Das bedeutet, dass sich die Luftverteilung in den vier Abgängen aufgrund des Druckverlustes der einzelnen Rohre von selbst regelt. Am Ende geht dann durch überlange Rohre fast keine Luft mehr hindurch, die ganze Luft entweicht über die nahegelegenen Stutzen. Und wenn Du diese stark abdrosselst, vernichtest Du Systemleistung, denn Du zwingst die gesamte Luft durch die langen Rohre.

    Lange Rohre = hoher Druckverlust = wenig Systemleistung

    Ich vermute, dass bei Deiner Lösung zum Beispiel aus den Küchenausströmern nix strömen würde.

    Ein Vorschlag noch, kannst Du die Heizung in den anderen Sitzkasten verschieben? Dann wären die Rohrlängen gleichmässiger (auch die des Warmwassers).

    Viel Erfolg,
    Myk

  • richis
    Experte
    Beiträge
    132
    • 8. Januar 2017 um 10:27
    • #8

    Hallo Leute,

    vielen Dank für die Tipps.
    Werde die Anzahl der Ausströmer reduzieren und die Leitungslängen kürzen.

    Ich habe heute mal Truma angeschrieben ob sie solche Tabellen und Vorschläge für die Leitungsführung haben.

    @Mykk: Ja die Heizung kann ich auch in den anderen Sitzkasten verschieben.

    Vielen Dank erstmal.

    Werde mich melden sobald ich von Truma eine Nachricht habe.

    Grüße

    Richi

    Richi

    OVERLANDTRUCKS
    Richard Schätzl
    Kusserstrasse 11
    94051 Hauzenberg
    Germany

    info@overlandtrucks.de
    http://www.overlandtrucks.de

  • S t e f a n
    womobox-Halbgott
    Beiträge
    644
    • 8. Januar 2017 um 10:37
    • #9

    Moin.

    Wurde das ganze mal durchgerechnet, ob die Truma das auch schafft? Jeder Abzweig, Knotenpunkt, Austritt, Bogen etc. beherbergt ja Verluste. Die Daten sollten doch auch bei Truma irgendwo stehen. Von Webasto kenne ich das so.


    Gruß Stefan

    Alles wird gut. Irgendwann.

  • richis
    Experte
    Beiträge
    132
    • 8. Januar 2017 um 11:12
    • #10

    Hallo Leute,

    vielleicht sollte ich auch die Webasto Dual Top EVO 8 verbauen?

    Die wäre vom Preis auch günstiger.

    Grüße

    Richi

    Richi

    OVERLANDTRUCKS
    Richard Schätzl
    Kusserstrasse 11
    94051 Hauzenberg
    Germany

    info@overlandtrucks.de
    http://www.overlandtrucks.de

  • Cosmo.
    Junior
    Beiträge
    81
    • 8. Januar 2017 um 11:30
    • #11

    Hallo Richi,

    wenn die EVO 8 für Euch in Frage kommt, unsere läuft klaglos und den Einbau habe ich hier dokumentiert:

    Link Heizungsbau

    LG Ronald

Jetzt mitmachen!

Mit einem Benutzerkonto kannst du das womobox Forum noch besser nutzen.
Als registriertes Mitglied kannst du:
- Themen abonnieren und auf dem Laufenden bleiben
- Dich mit anderen Mitgliedern direkt austauschen
- Eigene Beiträge und Themen erstellen

Benutzerkonto erstellen Anmelden

Spenden-Ziel

Jährlich (2026)

25,5 %

25,5% (127,50 von 500 EUR)

Jetzt spenden

Benutzer online in diesem Thema

  • 5 Besucher
  1. Nutzungsbedingungen
  2. Datenschutzerklärung
  3. Impressum
Gefällt es dir hier? Dann bitte jetzt :)
Community-Software: WoltLab Suite™