Verkäufer von GFK-Profiele gesucht.
-
-
Neues von der Provil-Front .
Gefunden bei AMR-outdoorwelt.de
Hab ne alte Beilage gestern durstöbert und dann das richtige Provil gefunden, Zufall.
Ob AMR das noch hat? Frag am Montag nach. Aber es ist genau was was ich Suche in 4 mm Dicke
, in GFK
hier das Provil, bestimmt auch für andere interessant.
PS selbst gemalt, da nur auf Papier vorhanden -
Hi, Rock,
Zitat von rocknrollAber es ist genau was was ich Suche ...
wenn ich es richtig sehe, bekommst Du mit dem Profil nur eine Einfach-Dichtung hin, da es in der Zeichnung oben rechts keine überstehende Leiste zu geben scheint. Oder willst Du von Aussen noch eine zusätzliche Leiste aufkleben? das wird dann ein richtiges Schwergewicht...
Viele Grüße
Leerkabinen-Wolfgang -
-
Ne , ich lasse das so und habe mich von dir überzeugen lassen
2 Dichtungen werden wohl reichen, wenn nicht kommt im Innenraum noch ne Aluleiste überlappend dran und dann hab ich die 3 Dichtung.
Grüße -
So neues.
AMR bekommt noch alle Profile, auch wenn sie nicht mehr so viele davon verkaufen.
Kaufbar nur in 6,5 Meter Stangen
, Jedoch sind Lieferungen bis 2Meter per Post möglich und günstig.
AMR kann aber vor Ort zersägen auf euere Wunschmaase (kostenlos), Sprich das passt dann richtig gut
Preis: ca. 10% teuerer als oben angegeben, war ja auch schon ein paar Tage alt.
-
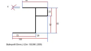
mann kann auch das Stufenprofil von Pecocar benutzen
wird da auch wohl was Billiger sein da die die patente haben.
gruss
-
-
Jetzt mitmachen!
Mit einem Benutzerkonto kannst du das womobox Forum noch besser nutzen. Als registriertes Mitglied kannst du: - Themen abonnieren und auf dem Laufenden bleiben - Dich mit anderen Mitgliedern direkt austauschen - Eigene Beiträge und Themen erstellen