1. Portal
  2. Forum
    1. Forenübersicht
    2. FAQ - Fragen rund ums Forum
  3. Camper
    1. Bautagebücher
    2. Camper Galerie
    3. Wissensbasis
  4. Treffen
    1. Anstehende Treffen
    2. Impressionen vergangener Treffen
  5. Reisen
    1. Reiseziele
    2. Reiseberichte
    3. Urlaubsfotos
  • Anmelden
  • Registrieren
  • Suche
Dieses Thema
  • Alles
  • Dieses Thema
  • Dieses Forum
  • Artikel
  • Seiten
  • Forum
  • Termine
  • Galerie
  • POIs
  • Blog-Artikel
  • Erweiterte Suche
  1. womobox & Leerkabinen-Forum
  2. Forum
  3. Ausbau: Installation und Technik
  4. Fenster, Türen, Klappen und Dachluken

Hubdach Scherengelenk - Eriba 74' Ähnlich.

  • mrmomba
  • 30. Dezember 2020 um 01:49
  • mrmomba
    womobox-Guru
    Beiträge
    4.358
    • 30. Dezember 2020 um 01:49
    • #1

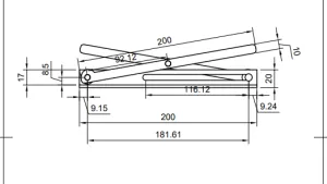
    Ich weiß nicht, ob es jemand braucht oder einfach nur für den Informationsfluss interessant ist - vielleicht auch ein Eintrag in der Wissensbasis wert, keine Ahnung.
    Mir war zwar nicht gerade Langweilig, aber ich wollte zu einem mich weiter im CAD einarbeiten und zum anderen Verstehen, wie unterschiedliche längen der Streben den Hub am Dach ausmachen ... Und auch etwas über die Bauhöhen vom Hubdach verstehen.
    Naja Dabei rausgekommen ist eine Skizze, eine kleine Teileliste usw.
    Vielleicht kann es jemand gebrauchen - natürlich wird die gleiche Schiene mit Langschlitz auch oben gebraucht. Bei der Eriba wird der Hubmachnismuss mittels einer Feder gespannt.
    Wie gesagt es ist eine Skizze - Materialstärken sind nicht beachtet.


    ----


    Nun ja, und wenn es keiner für eine Idee gebrauchen kann - dann wird dieser Beitrag in einer Woche eh verschwunden sein :D
    Aber vielleicht mag es ja für eine Idee helfen.

    5596-9c1f21f7b8c7fa5e47e4297fb7f4dc44cd25032b.webp

    Es Grüßt: MrMombatou
    ----

    Mrmombas + seine Frau und ihr neuer, erster Camper VW T3
    Mrmombas + Seine Frau und ihre erste Quasileerkabine!
    Mrmombas + Seine Frau und ihre neues Übergangswohnzeug

Jetzt mitmachen!

Mit einem Benutzerkonto kannst du das womobox Forum noch besser nutzen.
Als registriertes Mitglied kannst du:
- Themen abonnieren und auf dem Laufenden bleiben
- Dich mit anderen Mitgliedern direkt austauschen
- Eigene Beiträge und Themen erstellen

Benutzerkonto erstellen Anmelden

Spenden-Ziel

Jährlich (2025)

105,3 %

105,3% (579,00 von 550 EUR)

Jetzt spenden
  1. Nutzungsbedingungen
  2. Datenschutzerklärung
  3. Impressum
Gefällt es dir hier? Dann bitte jetzt :)
Community-Software: WoltLab Suite™