1. Portal
  2. Forum
    1. Forenübersicht
    2. FAQ - Fragen rund ums Forum
  3. Camper
    1. Bautagebücher
    2. Camper Galerie
    3. Wissensbasis
  4. Treffen
    1. Anstehende Treffen
    2. Impressionen vergangener Treffen
  5. Reisen
    1. Reiseziele
    2. Reiseberichte
    3. Urlaubsfotos
  • Anmelden
  • Registrieren
  • Suche
Dieses Thema
  • Alles
  • Dieses Thema
  • Dieses Forum
  • Artikel
  • Seiten
  • Forum
  • Termine
  • Galerie
  • POIs
  • Blog-Artikel
  • Erweiterte Suche
  1. womobox & Leerkabinen-Forum
  2. Forum
  3. Basisfahrzeug und Aufbau
  4. Leerkabine: Absetzkabinen und Festaufbauten

Heckkoffer u. Fahrradträger. Mit Zeichnung!!!

  • Manfred1
  • 26. Mai 2013 um 00:12
  • Manfred1
    womobox-Spezialist
    Beiträge
    429
    Wohnort
    Ostfriesland
    • 26. Mai 2013 um 00:12
    • #1

    Hallo,

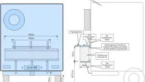
    brauche mal wieder euren Rat. Möchte mir ans Heck eine Transportbox mit Fahrradträger setzen. Beides soll selbst gebaut weden. Unten sehr ihr meinen Entwurf. Die Vierkantrohre wollte ich mit Sika und Verschraubungen an die Gfk-Außenwand befestigen (das hält ewig). Hatte erst überlegt, als Stütze der Box, zwischen unterkante Box und Stahlrahmen des Fahzeuges ein Vierkantrohr anzubringen. Hab mich dann aber für 3 Aluwinken entschieden, die dirkt an der Außenwand angebracht werden.

    Was haltet ihr davon?

    Fragt nun aber nicht wieviel Gewicht da rein kommt. Kann ich wirklich nicht sagen. Auf alle Fälle 2 Räder obendrauf (30 kg) und in die Kiste alles Mögliche wie Kabel,....

    Gruß Manfred

    PS: Kritik ist erwünscht!

    Bilder

    • Box mit Träger.jpg
      • 102,45 kB
      • 1.152 × 766

    Ausbau ist fertig, wird aber hoffentlich eine ewige Baustelle bleiben.
    Unter http://www.marifeee.de, Link "Wohnkabine Selfmade" gibt es ein paar Bilder.

  • Picco
    Moderator
    Beiträge
    5.623
    Wohnort
    Rorschacherberg / Schweiz
    • 26. Mai 2013 um 07:35
    • #2

    Hoi Manfred

    Ich hätte da Angst dass es die Sandwichwand zu sehr belastet, vor allem das Reserverad würd ich nicht so weit oben montieren, runter damit so weit es geht!
    Und ich würde eine Befestigung am Stahlrahmen eindeutig vorziehen!
    Mit dünnwandigen Stahl-Vierkanntrohr kannst Du da eine stabile, recht leichte Konstruktion erreichen, die Dir die Kabine nicht in Mittleidenschaft zieht!
    Meine Meinung...

    Gruss

    Picco

    http://www.comoltech.ch Meine Reiseberichte

  • Cosmo.
    Junior
    Beiträge
    81
    • 26. Mai 2013 um 07:57
    • #3

    Hallo Manfred,

    ich weiß zwar nicht wie Deine Verbindung vom Rahmen zur Kabine gemacht ist. Ich würde aber versuchen die Hauptlast auf den Rahmen zu bringen. Die Verbindung soll ja doch viele Jahre stabil halten :wink:

    Wir haben an unserm Steyr so eine Konstruktion, hier mal der Link zum anschauen:

    Bilder Link

    LG Ronald

  • Manfred1
    womobox-Spezialist
    Beiträge
    429
    Wohnort
    Ostfriesland
    • 26. Mai 2013 um 11:29
    • #4

    Hallo Picco, hallo Ronald,

    erstmal Danke!!!
    Dann war ja mein erster Gedanke doch der Richtige. Hab mla Fotos und eine neue Zeichnung angehängt.
    Roland: hast du den Rahmen zusätzlich noch an der Kabine besestigt?

    Ich werde die Verschraubungen mit Hüsen anbringen, wodurch die Sandwichplatte nicht zusammengedrückt wird. Der Rahmen trägt ist eine Verlängerung des Hauptrahmens und ist fest mit der Kabine verschraubt (s. Foto)

    Gruß Manfred

    Bilder

    • Box u Träger II.jpg
      • 89,15 kB
      • 1.152 × 766
    • 07.05.2012 023 II.jpg
      • 150,29 kB
      • 1.487 × 995
    • DSC_0441.JPG
      • 208,79 kB
      • 774 × 518
    • DSC_0435.JPG
      • 237,34 kB
      • 774 × 518

    Ausbau ist fertig, wird aber hoffentlich eine ewige Baustelle bleiben.
    Unter http://www.marifeee.de, Link "Wohnkabine Selfmade" gibt es ein paar Bilder.

  • Cosmo.
    Junior
    Beiträge
    81
    • 26. Mai 2013 um 11:56
    • #5

    Hallo Manfred,

    ja Du hast Recht, im oberen Abschnitt des Trägers sind vier Schrauben mit innen liegendem Gegenblech verschraubt. Diese tragen aber keine Last und sind nur zur besseren Stabilität angebracht. Ich hab Dir mal zwei Bilder angefügt.


    LG Ronald

    Bilder

    • IMG_6677.jpg
      • 181,65 kB
      • 800 × 600
    • IMG_6583.jpg
      • 155,56 kB
      • 800 × 600
  • Manfred1
    womobox-Spezialist
    Beiträge
    429
    Wohnort
    Ostfriesland
    • 26. Mai 2013 um 12:02
    • #6

    ok, danke. Ich wollte, wegen des Gewichtes Alu-Vierkantrohr mt den Maßen 50x30x2 und 50x50x2 mm evtl. 3 mm nehmen. Alternativ Stahl verzinkt oder Edelstahl. Was würdes du/würdet ihr empfehlen?
    Die Hülsen für die Schraubbefestigung ca. 1 mm kürzer als die Wanddicke um etwas ZUG/HALT zu bekommen.

    Gruß Manfred

    Ausbau ist fertig, wird aber hoffentlich eine ewige Baustelle bleiben.
    Unter http://www.marifeee.de, Link "Wohnkabine Selfmade" gibt es ein paar Bilder.

Jetzt mitmachen!

Mit einem Benutzerkonto kannst du das womobox Forum noch besser nutzen.
Als registriertes Mitglied kannst du:
- Themen abonnieren und auf dem Laufenden bleiben
- Dich mit anderen Mitgliedern direkt austauschen
- Eigene Beiträge und Themen erstellen

Benutzerkonto erstellen Anmelden

Spenden-Ziel

Jährlich (2026)

31,5 %

31,5% (157,50 von 500 EUR)

Jetzt spenden

Benutzer online in diesem Thema

  • 1 Besucher
  1. Nutzungsbedingungen
  2. Datenschutzerklärung
  3. Impressum
Gefällt es dir hier? Dann bitte jetzt :)
Community-Software: WoltLab Suite™